
Die Nantaise d’habitations, Bauherr des Projekts, lobte 2004 einen Wettbewerb mit dem Thema “Dichte und individuelle Stadtbebauung” aus. Das Büro Boskop aus Lille, bestehend aus fünf Architekten (Laurent Zimny, François Delhay, Sophie Delhay, Franck Ghesquière und David Lecomte), gewann den Wettbewerb. Das Projekt ist in der Tat sehr interessant: Es galt, ein Modell für individuelles Wohnen zu entwickeln, eine Alternative zu Wohnblöcken und Siedlungen. Ziel ist es daher, den individuellen Wohnraum zu verdichten und kollektive Wohnungen horizontal zu entwickeln.

Natürlich musste ein Gleichgewicht zwischen der Entfaltung der Öffentlichkeit und einem geheimen Garten gefunden werden, der an einen privaten Raum, nämlich die Wohnung, angrenzt. Keiner der Räume sollte zweitrangig sein, alle sollten optimiert werden. Darüber hinaus lebt und passt sich das Wohnhaus, wie der Mensch, an neue Situationen und Bedürfnisse an. Drei Wohnmodelle können in der Größe variieren.

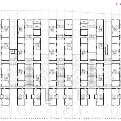
Das Baugrundstück befindet sich in der ZAC de la Bottière Chênaie im Osten von Nantes. Das Gelände hat eine gleichmäßige Neigung von 5%. Das Grundstück dient als Übergang zwischen zwei Zonen: dem Park im Norden und der Siedlung im Süden. Das Projekt besteht aus einem Ensemble von 19 Streifen mit einer Länge von 55 Metern und einer Breite von 4,60 Metern. Diese wechseln sich ab mit bebauten Gärten und bebauten Innenhöfen. Gassen durchziehen alle Streifen und verteilen die Wohnungen.

Jedes Wohnhaus besteht aus quadratischen Räumen mit einer Größe von ca. 15 m², da die mathematische Einheit des vorgestellten Projekts nicht die Wohnung, sondern der Raum ist. Die Position jedes Raumes kann unterschiedlich sein, ebenso wie seine Ausrichtung, seine Außenfarbe und seine Fenster. Der Garten ist das Zentrum des Wohnhauses, er kann sogar als Hauptraum des Hauses angesehen werden, er ist auch der Eingangsbereich. Es können “Plus”-Räume hinzugefügt werden, um den sich ändernden Bedürfnissen der Familie gerecht zu werden.

Dank des Höhenunterschieds des Geländes behält jedes Wohnhaus eine Aussicht, hauptsächlich auf Gemüsegärten. Es sei darauf hingewiesen, dass ein Fluss den Park in seiner Länge durchqueren wird. Im lokalen Bebauungsplan ist eine Mediathek sowie dichte Wohnbebauung im Westen vorgesehen. Im Osten befinden sich Parkplätze, die mit einem begrünten Dach versehen sind und dem Problem der Stadt entsprechen. Die Straße zu diesen Garagen ist privat. Unterhalb des Geländes, unter den Wohnungen, befindet sich ein Parkplatz mit 60 Stellplätzen, der den Bedarf der Mieter dieser Wohnungen ergänzt.








