Installé à Londres dans le quartier de Stoke Newington, cet immeuble de la rue Victorienne Barretts Grove rassemble 6 logements déployés sur 635 m2. Il a été dessiné par l’agence Groupwork + Amin Taha.

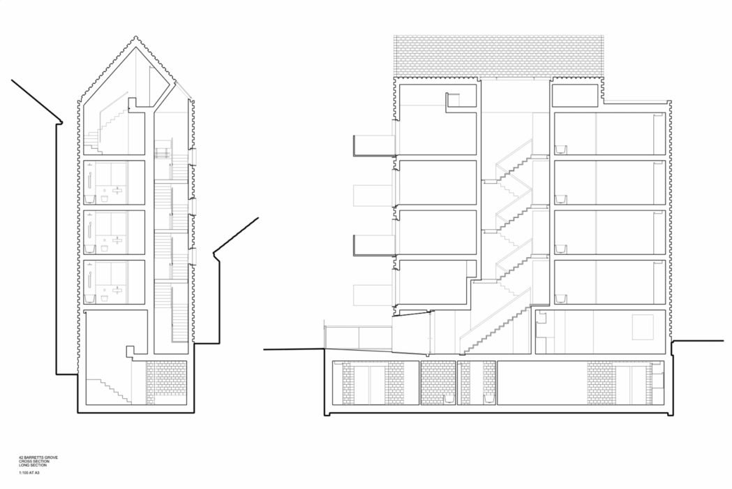
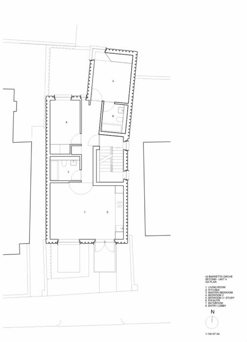
La rue Barrets Grove est principalement constituée de maisons mitoyennes à deux étages. Cette linéarité est ensuite interrompue par de récents petits immeubles et la présence de l’école primaire Princess May qui marque l’arrivée de la Stoke Newington Road. C’est cette dernière qui a impulsé l’idée de travailler les pignons du projet.

Un logement en sous-sol réussi.
Occuper un logement en sous-sol est rarement quelque chose d’heureux. Les anglais sont plus habitués que nous à ce type d’exercice, l’agence Groupwork + Taha Amin nous le prouve avec ce projet. Le premier logement occupe l’ensemble du sous-sol et bénéficie d’une chambre avec commodité au RDC de l’immeuble où l’entrée est organisée. Ce logement est le seul qui revêt un parement intérieur en brique. En effet, pour des questions techniques, seulement de la maçonnerie pouvait être employée à ce niveau. De plus, le travail du sous-sol permet de mieux contenir la différence de niveau entre la rue et le jardin.

Les architectes ont cherché à offrir un maximum d’espace à ce logement. La première des réponses a été de réduire au maximum l’épaisseur des murs. Pour ce faire, les architectes ont accepté de laisser la brique structurelle apparente. Par la suite, les linteaux ont reçu le même traitement donnant ainsi une lecture du fonctionnement structurel de l’édifice. L’emploi de la brique est prolongé par les murs de soutènement qui forment les cours extérieures.

Une structure en bois
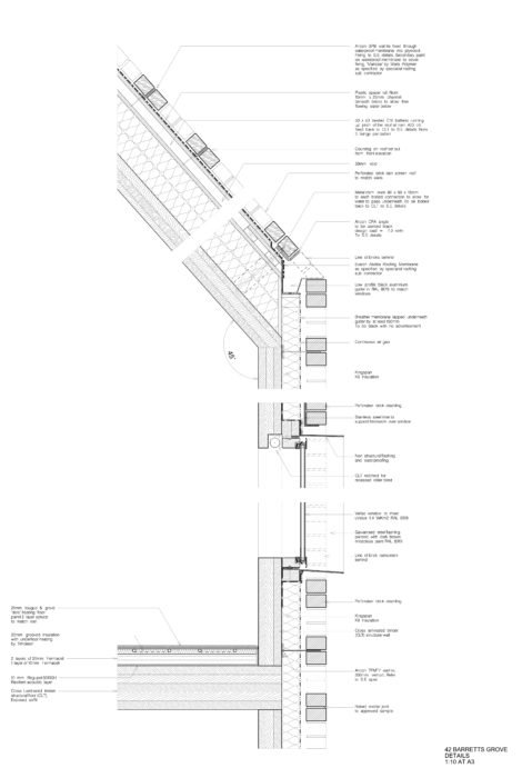
Une fois le sous-sol construit, les ingénieurs ont mis au point une structure en bois lamellé-croisé (CLT). Le choix structurel se lie dès l’entrée dans le bâtiment. Pour des raisons environnementales et architecturales, ce bois n’a pas été recouvert, il a été ignifugé et laissé visible à la fois pour les plafonds et les murs intérieurs. Le parquet flottant quant à lui permet d’installer un plancher chauffant.

Une enveloppe de brique
Il ne vous aura pas échappé que l’ensemble des constructions de la rue sont revêtues de briques. Les architectes ont donc convaincu leur maîtrise d’ouvrage de créer un parement avec ce matériau pour lui permettre de remporter le projet.

La brique vient masquer l’isolation thermique par l’extérieur dissimulée derrière un pare-vapeur. Les architectes ont eu l’audace de prolonger leur parement jusqu’à la toiture afin d’uniformiser l’enveloppe de l’immeuble. L’espacement entre les briques s’explique pour plusieurs raisons. Tout d’abord, les architectes souhaitent rendre lisible le caractère non porteur de la brique. Ensuite, la brique est un matériau qui travaille différemment que le bois, elle est donc sollicitée de manière différence. La porosité du parement permet ainsi à l’enveloppe de se dilater et de se contracter sans affecter la structure en bois lamellé-croisé.

Bien qu’importante, la présence de la brique en façade est allégée par les perforations des ouvertures. Les architectes y ont greffé de grands balcons, leurs tailles a été déterminées par la volonté de pouvoir prendre un repas dessus. On peut diner les soirs d’été sans être bloqué comme beaucoup de balcons le font malheureusement. Vous aurez remarqué que ces balcons métalliques ont été tissés avec de l’osier, ce qui permet une nouvelle fois de rendre la façade plus harmonieuse et légère.

Respect de l’environnement
Le choix des matériaux s’inscrit dans une démarche environnementale. Les architectes ont dès le départ mis de côté le placoplâtre, les plafonds suspendus, le carrelage ou les peintures. Le premier objectif était de diminuer l’empreinte carbone du bâtiment de 15%. Les choix de matériaux de construction les ont également amené à diminuer le temps de chantier et par suite les coûts de la construction. Le projet à couté un peu moins de 2 000 £/m2.

La conception se veut pérenne, les architectes sont donc allé jusqu’à dessiner les poignées de portes afin de concevoir des systèmes d’ouvertures qui traversent les décennies.

