L’agence portugaise Pitagoras Group est une agence majeure au Portugal. Récemment celle-ci a achevé le centre de gymnastique de Guimarães, un équipement sportif de 3 160m2 enveloppé de liège mais aussi remarquable par sa réponse environnementale.

Contexte et implantation
Guimarães est une ville de 160 000 habitants (taille équivalente à celle d’Angers), elle est située au nord du Portugal. Guimarães est aussi ville sportive avec notamment deux équipes de foot évoluant dans le premier championnat national. Le centre de gymnastique n’échappe pas à la règle car celui-ci est destiné à accueillir des sportifs de haut-niveau.
Composition architecturale de Pitagoras Group
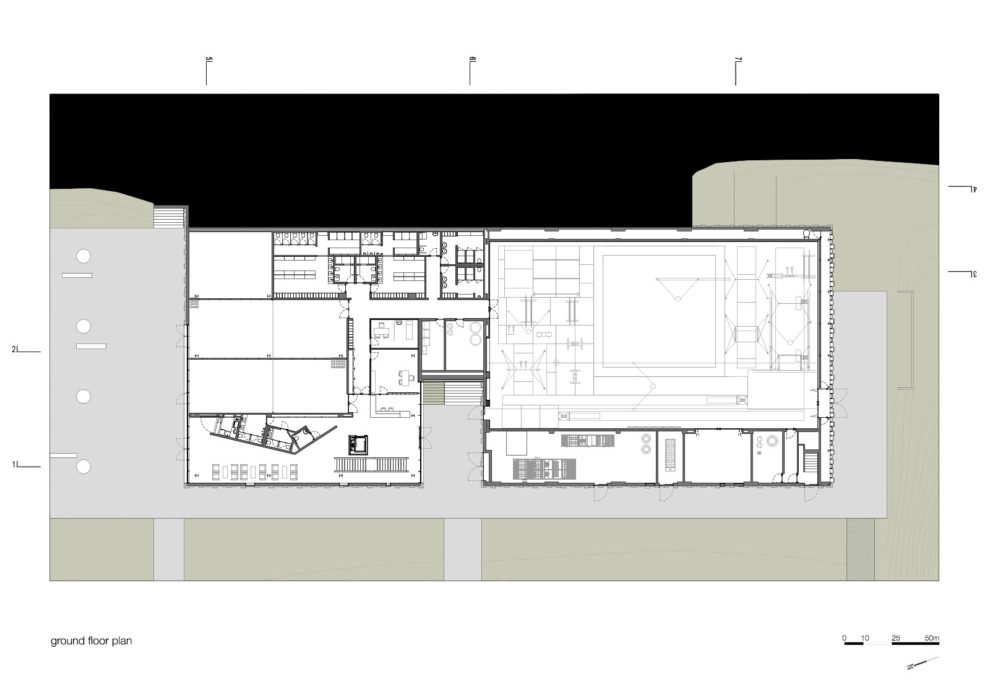
L’environnement paysager est vallonné ce qui a demandé aux architectes de Pitagoras Group de travailler sur une séquence d’espaces qui accompagne le visiteur et les gymnastes dans la descente vers la halle sportive. Pour cela, les architectes ont dissocié les deux flux, les sportifs accèdent au gymnase par un escalier monumental ouvert sur la vallée tandis que les visiteurs sont invités à continuer leur route vers un hall de verre les emmenant ensuite à la tribune depuis le haut de celle-ci.

Le site qui s’installe sur la vallée orientale de la ville offre un large panorama que les architectes ont souligné par un généreux espace couvert.

Les architectes ont enveloppé le bâtiment de liège pour deux raisons, la première était pour offrir une esthétique distinctive soulignant la fonction du bâtiment, la seconde était pour la durabilité du matériau et son respect de l’environnement. Il faut savoir que le Portugal est une terre importante dans l’exploitation de liège. Ce matériau provient des écorces de quelques essences d’arbres dont le chêne-liège.

Les architectes à travers leur construction ont également cherché à être pédagogue. Ainsi, la cage d’ascenseur est entièrement vitrée. Les poutres des sheds sont laissées apparentes de manière à ce que les visiteurs comprennent comment ça tient.

Si la façade en liège avec ces jeux de percements et de retrait de la matière est animée et complexe, l’intérieur est quant à lui traité avec une sobriété élégante. Les architectes de Pitagoras Group opposent le blanc des sols et des murs avec des tons foncés pour le mobilier, les menuiseries et les éclairages. On retrouve tout de même une petite touche de fantaisie avec les sièges colorés des gradins.

Choix techniques et environnementaux
L’enjeu du concours était d’offrir un équipement sportif à faible émission de CO2. Mission réussie, le projet est labellisé A++ au LeaderA, soit la plus haute classe environnementale pour un bâtiment au Portugal.

L’immense toiture qui couvre le gymnase est entièrement recouverte de panneaux photovoltaïques. L’excédent énergétique est stocké dans des batteries. Le chauffage est quant à lui assuré par de la géothermie qui redistribue la chaleur à travers un plancher chauffant. Pour ce qui est de la structure, elle est en béton armé avec une charpente métallique, je vous recommande de regarder la vidéo ci-dessus qui lève les voiles sur le chantier.


