
Livré en 2010 par HawkinsBrown, ce nouvel équipement culturel de la ville de Northants bénéficie d’une position centrale au sein du plan de développement de Corby, la nouvelle ville annexée à Northants dont le statut de nouvelle ville a été décrété dans les années 50. La nouvelle place accueillera également une gare ferroviaire ainsi qu’une piscine.

Alors que le programme écrit par la ville demandait deux bâtiments distincts, un pôle administratif et un centre d’arts, les deux bâtiments devaient créer une passerelle pour cette nouvelle zone d’aménagement. Les architectes ont plébiscités pour une seule et même composition, rationnelle et cubique. Outre le symbole de cette union, elle vise à toucher un autre point sensible, le coût. En effet leur proposition diminue le coût de fonctionnement en réunissant des services qui étaient présent dans chacun des programmes, ensuite la forme cubique présente une économie au niveau de la construction. L’entité comprend une salle de théâtre de 450 places, une salle multifonction, une médiathèque, les bureaux ainsi que la salle du conseil municipal et une terrasse en toiture.

À travers la forme du cube et du traitement de façade, les architectes ont voulu rompre à l’image de l’hôtel de ville traditionnel avec une façade principale face à la place publique. La façade principale se distinguera par une alternance au verre noir en sa partie centrale, qui dissimule la salle du conseil. Les deux gammes de verres employés accentuent l’idée de bâtiment objet, la coupe avec le sol est nette. Le sous-sol s’étend sous le parvis ou les entrées de services sont dissimulées. La cinquième façade est garnie d’arbres et de sedum, elle offre un espace de tranquillité autour du restaurant pour apprécier son thé. Des percées dans le cube offrent des vues sur le quartier en construction.

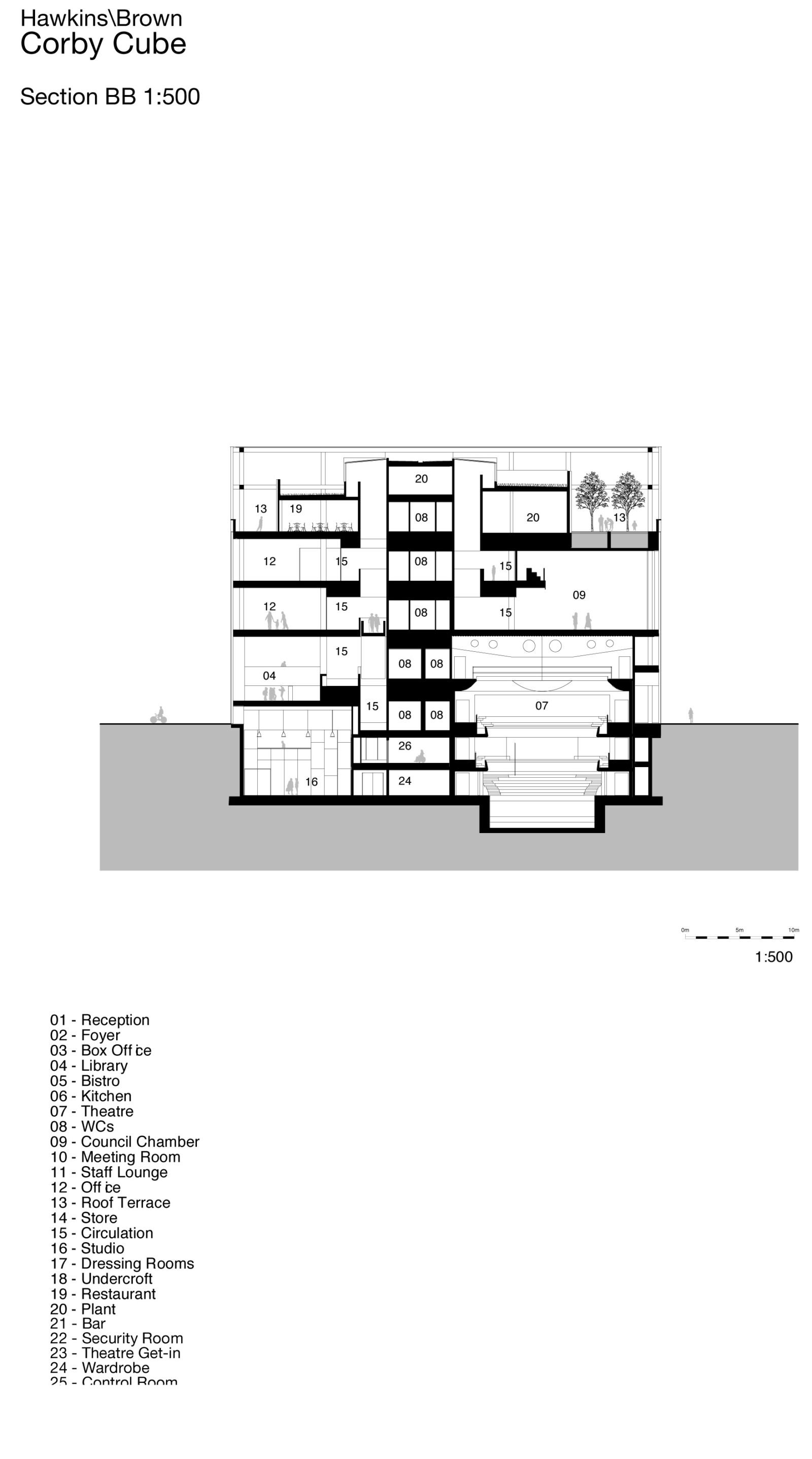
La distribution s’effectue par un noyau longitudinal, légèrement excentré qui est commun pour le public et les employés. L’organisation des programmes calque une horloge lorsque nous regardons la coupe BB : de la bibliothèque le matin, au spectacle du soir en passant par le restaurant du midi et de la réunion de fin d’après-midi.

D’un point de vue environnemental, le BET peut se vanter d’avoir produit le seul théâtre du pays à avoir la note excellent de la certification BREEAM (Building Research Establishment Energy Assessment Method). Une performance atteinte à travers une répartition intelligente des systèmes d’ouvertures pilotés par un système central avec une structure béton pour accumuler l’énergie emmagasiné. On peut également percevoir la présence de panneaux solaires et d’un dispositif de récupération d’eau de pluie.

- Maître d’œuvre : HawkinsBrown
- Maître d’ouvrage : Corby Borough Council
- Localisation : George Street, Corby, Northants, Royaume-Uni
- BET Structure : Adams Kara Taylor
- BET équipements : Max Fordham
- BET Acoustique : RBA Acoustics
- BET Environnements : Southfacing
- Économiste : Gardiner & Theobald
- Conseil théatre : Charcoalblue
- Paysagiste : Grant Associates
- OPC : Mouchel
- MDP : PFB Construction Management Services
- Graphisme et signalétique : SEA
- Date de concours : 2004
- Date de livraison : 2010
- Budget : 35 000 000 £
- Surface : 7 700 m²
- Photographies : Tim Crocker, Hufton+Crow


















