L’atelier d’architecture bordelais King Kong a réalisé la nouvelle scène de Mouvaux, dénommée l’Étoile. Remporté en juillet 2012 face à Zig Zag Achitecture et Trace Architectures, le centre culturel se développe sur 3 295 m2 pour un budget de 7,5 millions d’euros.

Contexte et implantation
Mouvaux est une ville nordique de 13 000 habitants à l’Est de Roubaix. La ville est plus connue pour le bistrot qui est installé à son cœur. En effet, dans les années 30, un chef d’entreprise adorait le fréquenter. Appelé les Trois Suisses, le bistrot était visible depuis une des filatures du chef d’entreprise. C’est ainsi que ce bistrot donna le nom à sa marque de textile qui fut un acteur majeur de la vente par correspondance avant l’époque Amazon. Aujourd’hui, l’entreprise qui ne compte plus qu’une quarantaine de salariés a été rachetée ce lundi par ShopInvest.

Mouvaux est donc une terre de filature comme l’est (ou l’a été) Roubaix. Si aujourd’hui la ville roubaisienne s’est considérablement tertiarisée grâce à sa Zone Franche Urbaine, le territoire de Mouvaux est quant à lui resté résidentiel avec un tissu essentiellement constitué de maisons individuelles.

Composition architecturale de King Kong
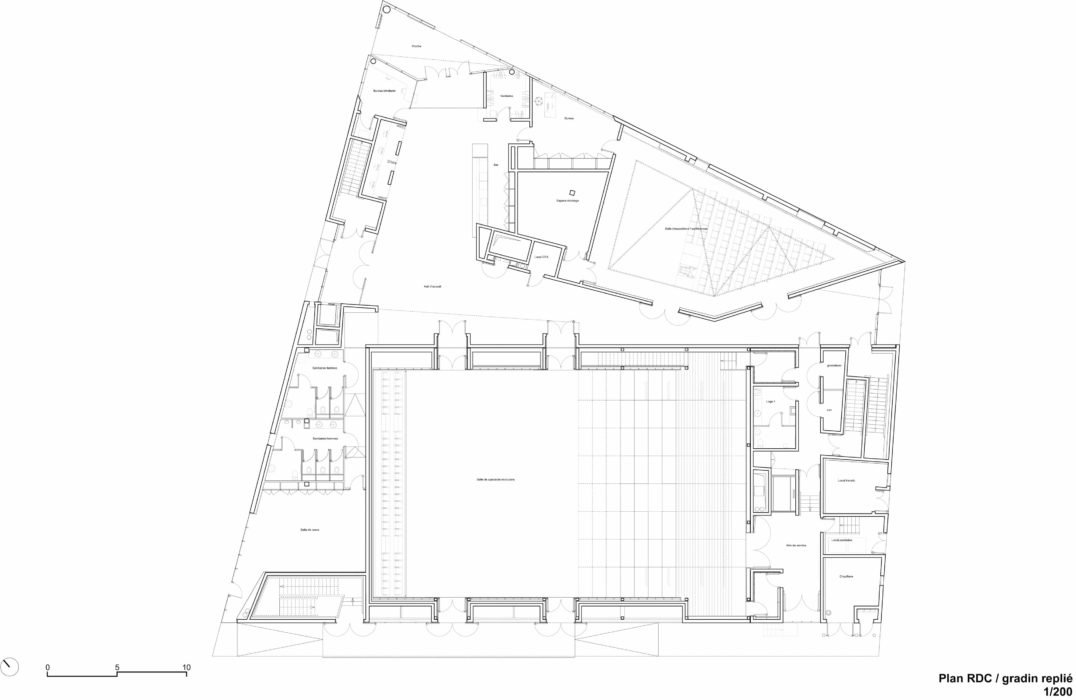
Le centre culturel de Mouvaux est formé par deux volumes en béton qui sont joints par une faille de verre. Cette rue intérieure permet de distribuer le programme qui contient une salle de spectacle de 500 places assises (750 en version debout) implantée au Sud ; des locaux associatifs, des salles de cours de musique ainsi qu’une salle d’exposition au Nord pour le second volume qui fait face à la place de cette ZAC maintenant achevée.

Je crois que c’est la première fois que je n’ai pas besoin de vous dévoiler le plan masse afin que vous compreniez cette parcelle. D’une superficie de 2076 m2et de forme trapézoïdale, les architectes ont laissé l’empreinte de celle-ci sur la façade. Ces empreintes sont tantôt pleines, tantôt vitrées selon l’espace qu’elles renferment.

La dissociation claire et fonctionnelle de ces deux volumes a été décisive dans l’attribution du marché de maîtrise d’œuvre. La ville de Mouvaux, maître d’ouvrage de l’Étoile, a également apprécié les formes sculpturales de l’édifice qui le met ainsi en avant et structure la place publique.

À l’intérieur de la salle de spectacle, les architectes ont opté pour une atmosphère intime en revêtant de noir les parois. Les sièges rouges viennent colorer l’espace, les premiers rangs sont rétractables.

Choix techniques et environnementaux
Comme vous pouvez le voir ci-dessus, le choix de l’enveloppe s’est porté sur le béton. Ce choix s’explique pour sa qualité d’inertie thermique mais aussi acoustique. En toiture, c’est une toiture végétalisée qui a été mise en œuvre. Les architectes ajoutent que du point de vue environnemental, les différentes entités fonctionnent de manière autonome. L’éclairage est exclusivement LED.
