L’agence montpelliéraine MDR Architectes a livré à la rentrée le nouveau groupe scolaire Germaine Richier. Fondée par Sancie Matte-Devaux, Frédéric Devaux et Arnaud Rousseau, l’agence a remporté le concours lancé par la ville de Montpellier en août 2015 face à Boyer Gibaud Percheron, Tourre Sanchis, Castelnau Ferri et Ignacio Prego Architectures.

Cet équipement scolaire se développe sur 3 386 m² SDP pour un budget de 6,3 millions d’euros, les architectes l’ont conçu dans une démarche BIM de niveau 3. Il compte 10 classes élémentaires et 5 classes maternelles.

Contexte et implantation du groupe scolaire Germaine Richier
Comme beaucoup de villes méditerranéennes, Montpellier connaît une croissance démographique positive. « Nous scolarisons près de 500 enfants supplémentaires à chaque rentrée » expliquait le maire de Montpellier, Philippe Saurel dans Le Moniteur en août 2017. C’est donc dans ce contexte que la création d’un groupe scolaire dans la ZAC Ovalie s’est décidée.

La ZAC Ovalie, dont les travaux ont débuté en 2006, s’étend sur 32 hectares et accueille 2 500 nouveaux logements et 50 000 m² de SHON tertiaires.Située au Sud-Est du centre-ville, la parcelle de 3 165 m² est à quelques centaines de mètres au Sud du stade de rugby Yves-du-Manoir. Elle est aujourd’hui bordée d’immeuble de logements récemment construit de trois à quatre étages. Autrefois, cette parcelle était habitée par un ancien hangar industriel qui logeait l’école d’art appliqués Studio M.

Composition architecturale de MDR Architectes
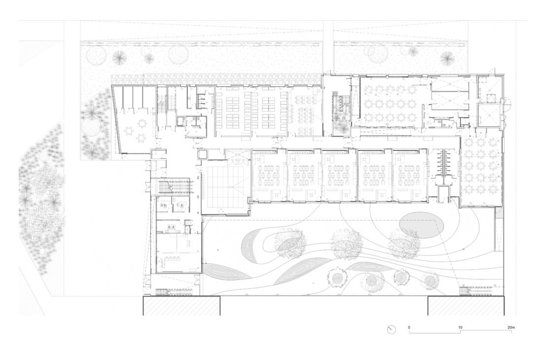
Pour MDR Architectes, ce qui a été le plus complexe dans la conception, fut de contenir les éléments du programmes accessibles de plain-pied ; à savoir l’école maternelle, le restaurant scolaire ainsi que des locaux d’administration. Pour répondre à ce challenge, les architectes ont occupé l’angle Ouest par le restaurant qui suit une organisation en L, chaque aîle abritant les demi-pensions d’une école pour permettre à la cuisine de se positionner à la rencontre des deux salles à manger et être accessible directement depuis la voirie.

Les cinq classes de l’école maternelle viennent délimiter la cour en disposant chacune d’un accès direct à celle-ci. L’administration de l’école vient fermer la cour de récréation à l’Ouest, tandis que les salles d’activités viennent s’installer au nord, le long de la rue avec un léger retrait par rapport au front de façade.

L’école élémentaire se déploie sur des deux étages. Ces deux niveaux se superposent avec un léger décalage correspondant à la largeur du couloir qui distribue les salles de classes exposées au Nord-Est. La toiture des salles de classes de l’école maternelle permet de recevoir la cour de récréation de l’école primaire. Cette dernière dispose elle aussi d’un préau matérialisé par une toiture terrasse inaccessible qui vient répondre au volume de l’administration. La cour est d’ailleurs prolongée de quelques mètres afin de constituer un brise soleil pour les salles de classes. Les façades étant orientés Sud-Ouest, le principe des débords de dalles est réitéré à chaque niveau.

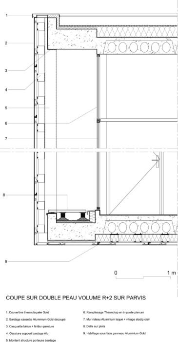
Interrogé par Actuarchi, Frédéric Devaux, architecte associé chez MDR Architectes, explique : « L’élément qui a guidé notre conception est l’affirmation de la superposition de ces trois volumes et que cette dernière soit la plus lisible, malgré les contraintes d’épaisseur de plancher, de structure et de plafonds techniques. Le projet devait affirmer son identité de bâtiment public dans un environnement à dominante domestique ». Ainsi, le dernier niveau abritant de l’école primaire est enveloppé d’un bardage Stacbond cuivré légèrement doré. Côté cour, l’enveloppe se décline en une succession de lamelle faisant office de brise-soleil pour le couloir. Ce choix de matérialité résulte dans la volonté des architectes à mettre en avant la préciosité du rôle de l’éducation. Cette affirmation est d’ailleurs ce qui a séduit le jury du concours en plus de la fonctionnalité du projet.

Choix techniques et environnementaux
Structurellement, le groupe scolaire Germaine Richier de Montpellier est constitué de prémurs isolés de 40 cm d’épaisseur. Les empreintes des voiles de béton sont laissées apparentes. L’architecte Frédéric Devaux précise : « Plutôt que de les gommer, nous avons souhaité affirmer ces joints ».

Côté technique, le projet est BEPOS, pour cela les architectes aidés du bureau d’études P3G ont mis en œuvre une chaufferie gaz. Le confort hygrothermique est maintenu à travers une ventilation simple flux complété d’un apport de ventilation naturelle avec entrée d’air hygroréglable. En toiture, 300 m² de panneaux photovoltaïques ont été installés.

