
Le projet est l’oeuvre du cabinet Tank Architectes, situé à Villeneuve d’Ascq dans le nord de la France. Le projet s’implante à l’arrière d’une propriété bâtie dans un site bordé de très grands arbres espacés. La demande du maître d’ouvrage porte sur 4 maisons pour des cadres en transhumance, pouvant être réunies en 1 ou 2 entités.

Le projet est composé de 4 branches qui se développent sur pilotis. La peau, structurelle, s’inspire de l’écorce d’un arbre mort sur le site. L’espace intérieur blanc et lumineux est filtré par cette peau sur les orientations sud et ouest. La structure arborescente du projet permet de réunir ou séparer les parties librement, les 4 extrémités se tordent au gré des contraintes et orientations.

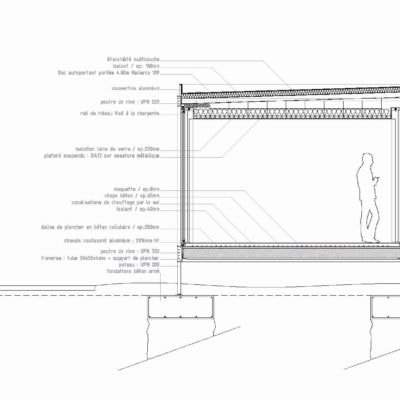
L’espace est modulable, libéré de tout point porteur pour en faciliter les changements d’affectation futurs. Chaque partie est unique par sa vue, son orientation, sa forme mais unie par une peau-écorce homogène.

- Architecte : Tank Architectes
- Équipe : Bruno Drumare, Olivier Camus et Lydéric Veauvy
- Maître d’ouvrage : privé
- Localisation : Villeneuve d’Ascq, 59, France
- Surface de terrain : 2 485 m²
- Surface de projet : 390 m²
- Budget HT : 750 000.00 €
- Date de livraison : janvier 2009
- Photographe : Julien Lanoo














