
Situé dans le quartier du Mirail à Toulouse, la médiathèque Grand M s’implante sur une parcelle entourée d’espaces libres, eux-mêmes délimités par des tours de 10 à 14 niveaux et des pavillons à étages des années 60. Le bâtiment de 1 800 m² a été achevé en mars tandis que la respiration a fait l’objet d’une requalification livrée le mois dernier.

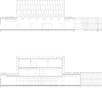
L’entrée de la médiathèque est dégagée afin de respecter les contraintes urbaines et également du au passage du métro en sous-sol. Ces deux éléments expliquent la forme non-conventionnelle de l’édifice. L’enceinte créée épouse ses limites, elle est matérialisée par un bandeau double hauteur de bardage métallique. C’est donc à l’intérieur de celle-ci que s’implante le bâtiment et où s’additionne une cours extérieure semi-couverte pour l’accueil des visiteurs. La façade quant à elle vient se plier pour s’ouvrir sur le rond-point.

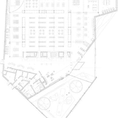
De l’ancienne construction, il reste plus que les plantations qui sont intégrées au nouvel aménagement. Le parvis qui longe l’avenue de la Reynerie et couvre le passage du métro joue sa vocation urbaine. Trois bancs viennent s’ériger du sol, les arbustes positionnés derrière ont pour objectif de créer un pare-vent. À l’angle opposé de la parcelle, c’est un jardin contemplatif qui délimite le terrain et converge un milieu sec avec un milieu humide.

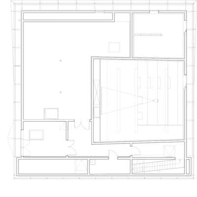
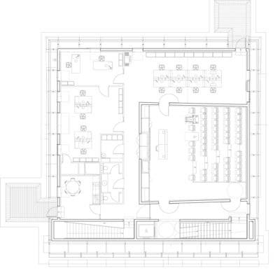
Le bâtiment est constitué de deux corps. Le premier cubique, sur une base de trois travées de côté et de trois niveaux accueille a sa base l’ensemble des rayons dits documentaires et les romans, autrement dits les livres qui se rangent de manière linéaire. Ses deux niveaux supérieurs hébergent l’administration et la salle de conférence de double hauteur. Le volume se clos d’une cinquième façade végétale. Ce choix résulte de sa forte exposition des logements alentours, il vise à adoucir la vue.

Le second corps se greffe au premier en épousant l’enceinte du projet. Il constitue un espace tampon entre le cœur du projet et l’espace public. Une entaille s’effectue entre les deux corps, comblé par du verre, elle permet d’arroser les rayons de lumière naturelle mais également de définir deux lieux de consultations. Les rayons plus attractifs (bandes dessinées, presse, vidéo) qui nécessitent un rangement autre que le rayonnage se situent autour du patio. Cet espace est ponctuellement ouvert sur l’espace public à travers des baies où le manteau aluminium vient s’entrouvrir sur lui-même. De l’intérieur, il n’est visible qu’un voile de béton banché percé de baies vitrées.

En ce qui concerne l’organisation de l’intérieur, « Le parti retenu a consisté à concevoir les espaces de lecture et de travail de la médiathèque comme des espaces clos, protégés des nuisances diverses : une médiathèque est pour nous aussi une oasis, et tout le contraire d’un supermarché ! » commentent les architectes.

Du point de vue thermique, le bâtiment BBC affiche un Cep inférieur de 59,6 % par rapport à la référence. La température est régulée à travers un échangeur sur nappes, d’une vetillation double-flux, le chauffage urbain et des panneaux photovoltaïques alimentent les besoin énergétiques. Le bâtiment s’abstient de climatisation.

- Maitre d’œuvre : King Kong
- Maître d’ouvrage : Oppidea mandataire pour la Ville de Toulouse
- Localisation : Toulouse, 31, France
- BET : Egis/Iosis Sud-Ouest
- HQE : Franck Boutté Consultants
- Acousticien : IdB Acoustique
- Paysagiste : Cyrille Marlin
- Économiste : Germinal Borras
- Graphisme et signalétique : Julie Soistier
- Surface : 1800 m2 bâtiment – 4400 m2 aménagements extérieurs
- Date de concours : mai 2007
- Date de livraison : mars 2012 (bâtiment) ; juin 2012 (parvis)
- Budget : 4 460 000 € HT dont 3 230 000 € pour le bâtiment
- Photographies : Arthur Péquin
















