Localisé dans la ZAC d’Andromède à Blagnac, l’ensemble de bureau pour le Crédit Suisse fut l’un des premiers à s’implanter dans la ZAC. Dessiné par le Studio Bellecour, le projet se caractérise par son voile en béton incurvé qui relie les deux bâtiments, en référence au milieu aéronautique. Ouvert depuis 2010, Le Galilée est composé de deux-faux jumeaux puisque leurs formes diffèrent. Ils gardent néanmoins un traitement de façade commun avec un complexe isolant par l’extérieur et des brise-soleil dont le module varie en fonction du besoin d’éclairement ; le bâtiment est ainsi labellisé HQE.
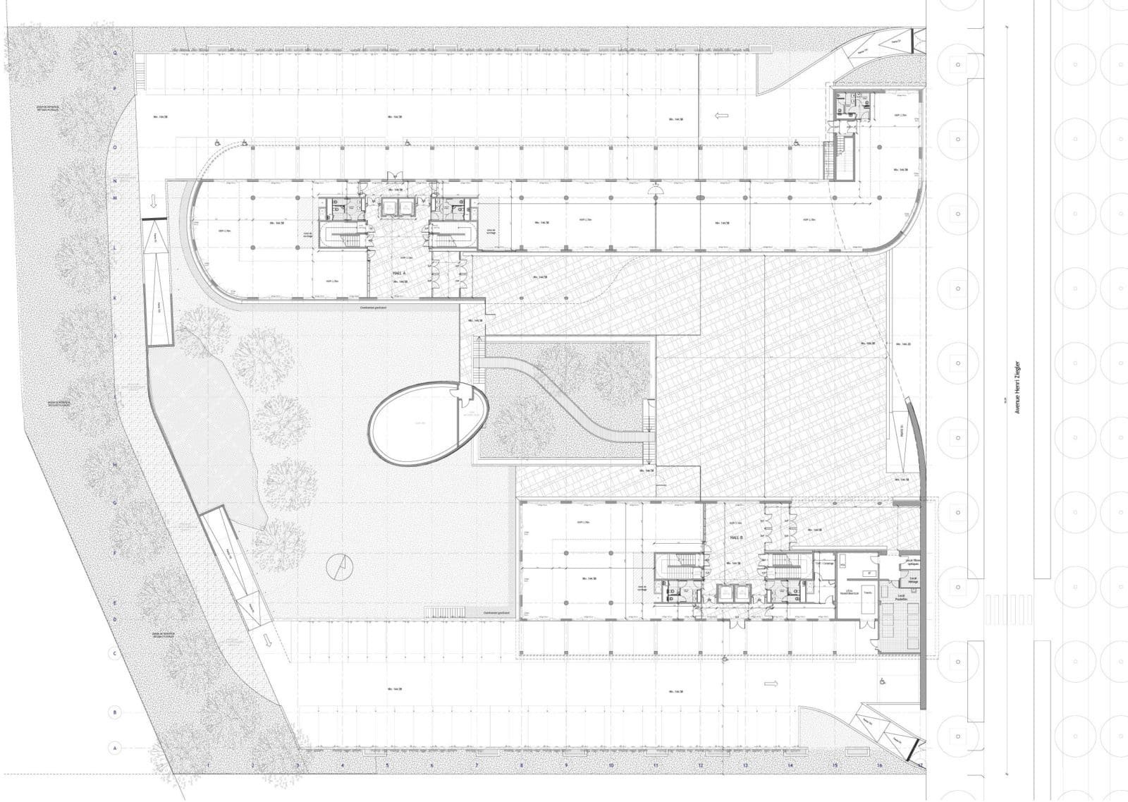
Ce voile de béton permet de relié les deux bâtiments tout en offrant une vue sur le parvis et une continuité du paysage. Un atout du projet est la division du programme en deux bâtiments distinct mais avec une peau commune, cela permet une certaine modularité de l’occupation des locaux, ainsi deux entreprises peuvent occuper les locaux. Les plateaux d’une superficie de 850 m² chacun sont distribués par un noyau central. Il accueille également les différentes gaines techniques.
Le bâtiment affiche une consommation d’énergie inférieure de 20% à la RT 2005. L’utilisation d’un vitrage de haute-performance, une isolation par l’extérieur, un parking en sous-sol ainsi qu’une toiture végétalisée favorise la diminution énergétique. L’installation des pare-soleil a été une chose difficile dans la réalisation, puisque ces derniers devaient être incurvés dans le sens de la largeur, leurs systèmes de fixation devaient être apparents.
Les pare-soleil s’interrompent afin d’offrir des accès en cas d’incendie. Le voile qui commence à la verticale avec la notation « Le Galilée » où il constitue un voile porteur se vrille à la manière d’une hélice d’avion pour finalement se poser trente mètres plus loin sur le second bâtiment de manière horizontale. Il repose sur des plots afin d’autoriser la dilatation du voile. La construction a nécessité un outil spécial pour le coulage, illustré par la vidéo ci-dessous. On notera que le voile est précontraint.
Outre élément mis en avant dans ce projet est le garage à vélo. Malgré son faible volume, il a nécessité une mise en oeuvre moins commune, celle du béton projeté. Méthode que l’on retrouve pour des voiles de périphérie en sous-sol, elle consiste à dresser la cage d’armature puis à projeter le béton. Malgré la maitrise de cette technique, la difficulté fut de réaliser la partie en surplomb au-dessus du patio. Deux vidéos sont disponibles sur la chaine You Tube d’Kiiwan, c’est par ici !






