
Difficile de construire aujourd’hui pour moins de 1 000 €/m², encore moins lorsqu’il s’agit d’un édifice public. Le collège que je vous présente se chiffre à 960 €/m². Il se situe dans la ville de Heerenveen aux Pays-Bas entre Amsterdam et Groningen.

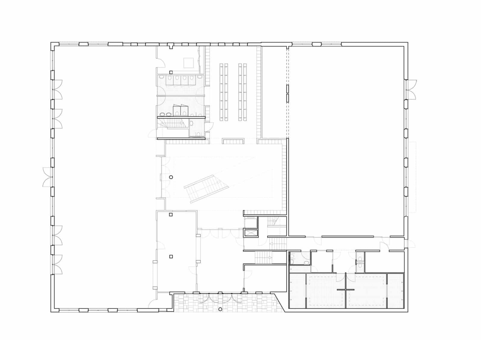
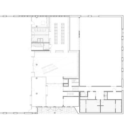
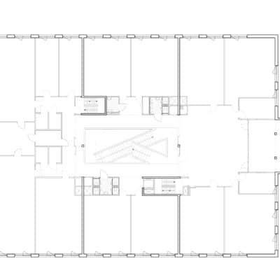
Le bâtiment est une extension du collège actuel ce qui explique l’absence de certains services. Il accueillera en grande partie les élèves de première année. Sa forme compacte a pour objectif de diminuer les déperditions thermiques. Les 22 salles de classes sont desservies par une coursive ceinturante. Un imposant escalier se loge dans la colonne centrale du bâtiment qui fait office d’atrium. Cet espace a pour objectif de faire dissiper l’air rejeté des salles de classes.

La façade est revêtue d’un manteau de briques recyclées. Cette peau dissimule l’ossature en béton qui a été entièrement préfabriqué pour des raisons financières.

Un petit talus entoure ce bâtiment, en réalité il dissimule la présence d’une salle d’activité sportive au rez-de-chaussée. Cette hauteur d’un mètre cinquante reprend la différence avec les salles de classes. La différence de plancher se fait donc sur cette partie enterré et non à l’étage.

Le rez-de-chaussée accueille également un amphithéâtre. Le traitement des parois intérieur est coloré, alliant peinture dorée et parement bois.

- Maître d’œuvre : HVDN Architecten / Studioninedots
- Maître d’ouvrage : Bornego college Heerenveen
- Localisation : Dominee Kingweg, Heerenveen, Pays-Bas
- Équipe : Arie van der Neut, Albert Herder, Tom Jonker, Jan Pieter Penders, Arie van der Neut, Jan Pieter Penders
- Date de concours : 2009
- Date de livraison : 2012
- SHOB : 4 500 m²
- SHON : 4 300 m²
- Budget : 4 372 339 €
- Photographe : Peter Cuypers













