Dessiné par l’agence de Bernard Bühler, le projet a récemment été mentionné à la Biennale d’architecture de Bordeaux. Le château et ses dépendances ont fait l’objet d’une réhabilitation attentive à la valeur patrimoniale du lieu, dans lequel prennent place des bureaux et un restaurant gastronomique, géré par le grand chef Jean-Marie Amat. Le tout inclut le réaménagement paysager des abords.
Aujourd’hui élément structurant du parc des Coteaux, le château du Prince noir occupe une position privilégiée, en surplomb sur la Garonne, non loin du pont d’Aquitaine. Inscrit à l’Inventaire supplémentaire des Monuments Historiques depuis1991, l’édifice, château ducal en1060, royal en1154, fut le lieu de séjour d’Edouard de Woodstock, fils du roi Edouard Il d’Angleterre, le fameux «Prince Noir» dans les années1360, en pleine Guerre de Cent Ans.
Devenu l’une des demeures des archevêques de Bordeaux, il fut transformé par les cardinaux de Sourdis (vers 1620), ainsi que par le cardinal de Rohan, puissant successeur dans les années 1780, avant d’être vendu comme bien national à la Révolution. En 1876, un Allemand de Stuttgart, M. Sacher, en devient l’acquéreur et lui donne la forme que nous lui connaissons, accolant au petit pavillon classique conservé une fantasmagorie crénelée dans la veine d’un néogothique débridé.
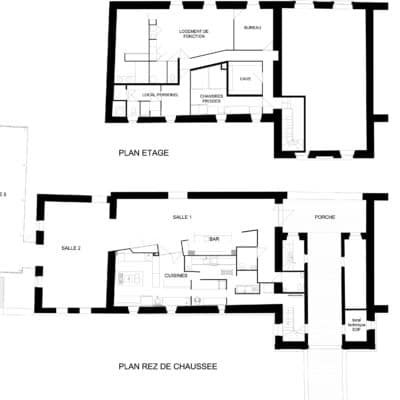
Le projet de rénovation du château du Prince Noir, tout proche du pont d’Aquitaine, porte sur deux ensembles architecturaux : le château et ses dépendances. L’intervention sur les dépendances associe leur réhabilitation et une extension permettant la création d’un restaurant dans l’aile sud (salles et cuisines ainsi qu’un logement à l’étage). L’extension s’affirme en un volume simple : Les larges baies du restaurant panoramique sont surmontées d’une résille d’acier galvanisé, les trois salles offrant différentes ambiances, intimes et chaleureusement colorées, ou largement ouvertes sur le paysage et baignées de lumière naturelle.
Le travail sur les espaces extérieurs vise à souligner la qualité du parc du château et à répondre aux exigences programmatiques. Les plantations existantes sont conservées. L’alignement planté est prolongé pour marquer l’accès au château, des dépendances jusqu’à la gloriette. Un espace de stationnement s’inscrit dans l’environnement paysager, les véhicules y sont ainsi abrités sous une pergola, minimisant de fait leur impact sur le domaine.
Le projet de rénovation du domaine du château du Prince Noir permet de requalifier un repère urbain à l’échelle de l’agglomération bordelaise. La rénovation du domaine du Prince noir permet de restituer à Lormont, mais aussi à l’agglomération tout entière, un repère urbain très important.
- Maître d’œuvre : Bernard Bühler
- Maître d’ouvrage : Fradin Promotion
- Localisation : Lormont, 33, France
- Surface du restaurant : 480 m²
- Budget : 720 000 € HT
- Date de livraison : mai 2007
- Photographes : Vincent Monthiers ; Michel Dubau





















