
Implanté à proximité de la gare de Massy-Palaiseau, le nouveau complexe sportif de Massy dénommé Atlantis sport joue la carte de la délicatesse musclée. Délicate par son implantation dans ce site bordé de tours HLM, délicate par l’attention qu’elle offre à ses gymnastes ainsi que pour sa logique environnementale mais toutefois, musclée par les tensions des sportifs extériorisées dans ce ruban de béton blanc laqué.
Imaginé par l’architecte marseillais Christophe Gulizzi qui vient de remporter la Halle Laissac à Montpellier, le bâtiment épouse l’ensemble de ses limites ; une ligne arrondie pour ne pas accentuer l’agressivité du lieu sans pour autant évoquer la souffrance à travers les coups de griffes dans les façades. Cette confrontation directe avec son milieu urbain est une volonté de l’architecte : s’abstenir de toute grille était une nécessité mais peut-être aussi un besoin compte tenu du programme. Ce dernier comprend une grande salle de gymnastique (860m²) pour accueillir les compétitions avec 350 places assises et une seconde salle de sport (600m²) pour les scolaires et les entraînements.

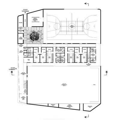
L’entrée se fait dans la longueur par la rue Victor Basch. Elle dessert les vestiaires à son rez-de-chaussée tant dis qu’à l’opposé, l’escalier de béton aux formes arrondies amène le grand public à l’étage des gradins. Une opportunité que saisit l’architecte pour arrondir une fois de plus les angles avec le garde-corps.

La confrontation des deux salles se fait par l’espace intermédiaire qui, à son rez-de-chaussée, accueille les vestiaires ainsi que les gradins à l’étage. La grande salle de gymnastique est à l’opposé des gymnases froids et banalisés en métal. La salle profite d’un plafond en lattis bois brut dont les teintes des lamelles suivent un ordre aléatoire. Elles ont été posées selon plusieurs modules pour éviter de voir les joints. Ce parement est réitérer au niveau des cloisons des vestiaires et du hall d’entrée. La continuité est rompue par les gradins et les murs blancs, gagnant ainsi en légèreté et en clarté. Le sol des espaces publics s’inscrit dans la continuité des gradins en béton quartzé.

Un patio carré vient aérer le corps de l’édifice. L’éclairage de la petite salle, dotée de 7 mètres de hauteur libre, est complété par un bandeau haut au-dessus de l’espace intermédiaire. L’éclairage de la grande salle avec ses 10 mètres de hauteur se fait par l’entaille de la toiture créée par le pli de la façade ainsi que d’un bandeau placé en face, au-dessus des tribunes.

D’un point de vue technique, l’Atlantis de Christophe Gulizzi a de quoi redonner du fil à retordre aux ingénieurs mais ce n’est pas sans compter l’expérience de l’entreprise ETPO qui a construit le pont Confluences à Angers ou encore le Pont Eric Tarbarly à Nantes que l’on aperçoit dans cet article. Le projet possède plusieurs points de complexité de mise en œuvre. Ainsi, ce bâtiment ne pouvait être construit que sur son sol. Les courbures inspirées du corps et traduites par le pli de la façade ont demandé près de 1 000 m² de coffrage. L’entrée est sculptée au travers d’une poutre voile de 35 mètres de long en porte-à-faux sans poteau d’angle. Enfin, la signalétique « Atlantis sport » transperce le ruban de béton dans toute son épaisseur afin de l’éclairer la nuit.

D’un point de vue thermique, le bâtiment est isolé par l’intérieur avec de la laine de bois. La petite salle est recouverte d’une toiture végétalisée tandis que la seconde salle est habillée de panneaux solaires à air pour le préchauffage de l’air neuf ainsi que de panneaux solaires thermiques couvrant 30 à 50 % des besoins en ECS.

- Maître d’œuvre : Christophe Gulizzi Architecte
- Maître d’ouvrage : Ville de Massy
- Localisation : rue Victor Basch, Massy, 91, France
- BET : BECT
- AMO HQE : Hubert Pénicaud
- Bureau de Contrôle : BTP Consultant
- CSPS : Qualiconsult Sécurité
- Début des travaux : septembre 2012
- Date de livraison : mars 2014
- Surface : 3 620 m²
- Budget : 5 936 309,64€ HT





































