
Commissariat avec logement sociaux, en lisant ce programme, ce projet m’a tout de suite attiré. S’adosser à un pignon d’immeuble R+6 à un angle de rue, il n’en a pas fallu plus pour me convaincre de vous le présenter. Ce lieu ; appelé Koban en Belgique, n’a rien de répressif comme nous l’explique Olivier Dubucq, architecte chez Matador. L’objectif de la municipalité est de concevoir un lieu de médiation avec ses riverains. Cette opération est l’œuvre des architectes belges Matador, achevée en décembre dernier, elle se situe à Schaerbeek en périphérie de Bruxelles. Les architectes étaient opposés en phase concours à Dewil Architectes, Archi+i, Atelier De Visscher & Vincentelli, 3A architectes & Plateforme.

Kévin Poireau : Vous avez décidé à l’encontre du maître d’ouvrage d’abattre l’immeuble existant, que reprochiez-vous à ce dernier, sa structure permettait-elle de remodeler ses façades ?
Olivier Dubucq : La position du maître d’ouvrage n’était pas si claire. La démolition intégrale pouvait tout à fait être envisagée selon lui. Cette solution s’est imposée très vite pour des raisons claires : le bâtiment ne permettait pas d’instaurer un rapport serein et contemporain avec la position recherchée d’une police nouvelle et surtout de proximité, avec la volonté de se rapprocher du citoyen et non de l’impressionner, à l’image de cet ancien bâtiment de justice de paix. C’est donc tant sa fonction passée que son architecture (tant typologique qu’organisationnelle) qui étaient inadéquates, ne permettant en effet pas de “remodeler” l’ensemble avec sens.

Kévin Poireau : Il n’est pas rare d’avoir un commissariat avec des logements de fonctions mais en revanche l’association commissariat – logement social questionne. Quelles ont été vos orientations pour faire cohabiter ces deux environnements ?
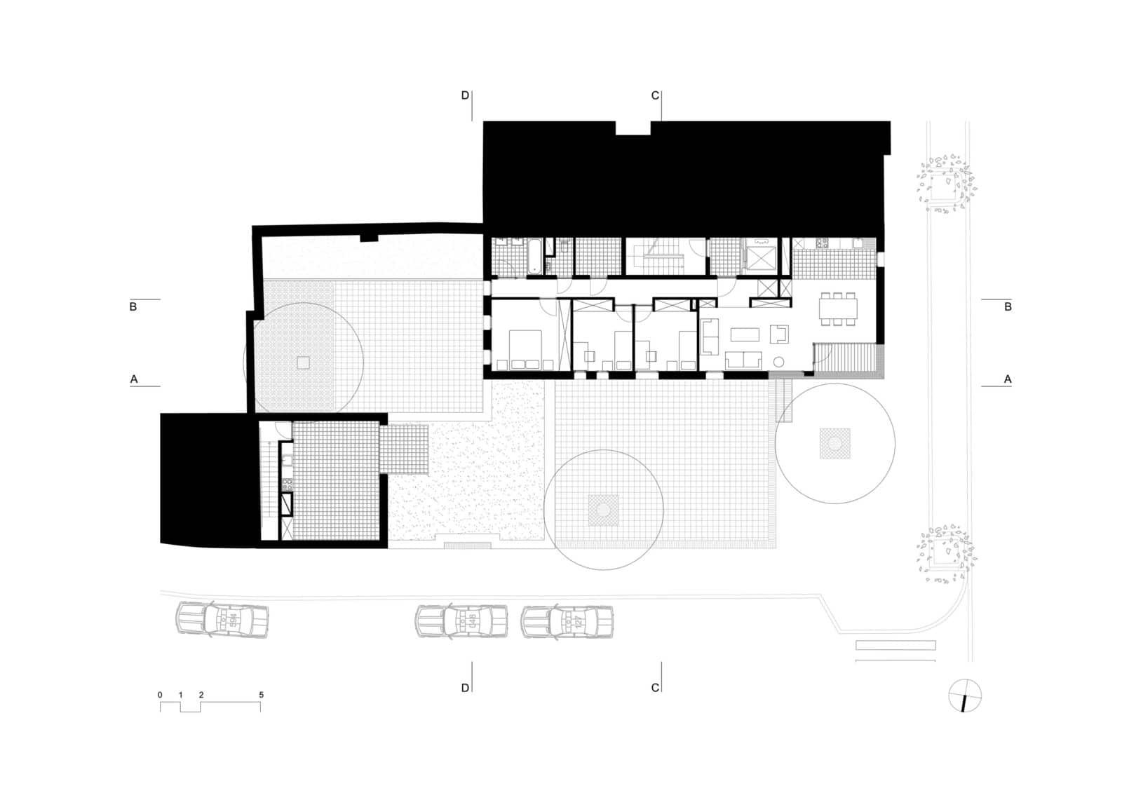
Olivier Dubucq : Comme je le disais, il faut se rappeler qu’il s’agit bien d’un “Koban” c’est-à-dire d’un lieu plutôt de dialogue et de médiation plutôt que de répression. Il nous semblait donc important d’ouvrir l’espace public pour donner un lieu tranquille en marge de la place Liedts très animée et en contact avec le commissariat, par une transition d’un trottoir généreux vers son parvis. Néanmoins, les entrées sont bien distinctes : le commissariat a son parvis, les logements leur adresse à rue. Les éléments sont imbriqués, les rapports sont induits mais non forcés : ils “cohabitent” comme vous dites. En outre, la topographie et la lumière jouent un rôle important : l’ensemble des fonctions publiques commissariat est de plain pied avec son parvis. Nous avons cherché à amener un maximum de lumière en intérieur d’îlot non seulement pour le bénéfice des logements mais aussi pour signifier cette continuité d’espace public au rez-de-chaussée, dans le prolongement du parvis. L’entrée des logements est elle au niveau de la rue des Palais : bien qu’un contact visuel soit possible, le niveau de l’entrée est plus basse que celui du parvis, marquant un frontière, même si elle est “poreuse”.

Kévin Poireau : Vous nourrissez la métaphore d’une police intégrée à la vie de ses habitants par le prolongement spatial du commissariat dans la partie logement. N’est-ce pas une façon de rapprocher la confrontation ?
Olivier Dubucq : C’est en effet en se basant sur le principe d’une police intégrée et de proximité que l’imbrication nous semblait être la meilleure méthode pour rencontrer les objectifs du MO sachant, comme je le disais plus haut, que cette imbrication n’implique nullement des rapports forcés. Il s’agit de rapprocher et rassurer plutôt que de confronter ou d’opposer.

Kévin Poireau : Si les logements sont agréablement percés, le commissariat reste à contrario fermé, secret, à l’image du voile côté boulevard qui ne laisse pénétrer que la lumière filtrant ainsi les regards du public. Était-ce une demande de la maîtrise d’ouvrage de garder une certaine intimité à l’intérieur du commissariat ou était-ce pour participer à votre intention ?
Olivier Dubucq : Nous avons cherché à rester très ouvert sur certains lieux de passage (grand châssis d’étage) et principalement sur l’accueil, toujours dans la recherche d’une police accueillante plutôt que répressive (raison pour laquelle nous avons voulu ouvrir aussi la cour en intérieur d’îlot comme je l’évoquais plus haut). Il s’agissait d’être accueillant tout en restant discrétionnaire pour les personnes venues témoigner de situations parfois très difficiles. A l’inverse, il s’agissait aussi de ne pas mettre la police en position d’observation constante, permettant plus facilement l’appropriation spontanée du parvis.

Kévin Poireau : Votre projet se positionne comme point de transition par deux fois, le premier en termes d’échelle, le second en termes d’articulation urbaine. Cette situation, vous l’avez vécue comme stimulante ou contraignante ?
Olivier Dubucq : Extrèmement stimulante ! C’est une chance de pouvoir travailler un coin comme articulation urbaine et c’est bien pour cela que nous l’avons saisie en mettant en oeuvre cette transition (élargissement du trottoir et parvis). Le jeu des terrasses des appartements témoignent aussi de cette transition : les 2 premières sont nettement plus en rapport avec la place Liedts de par leur hauteur, alors que les 2 terrasses des R+4 et R+5 peuvent pleinement profiter de la vue extraordinaire sur la ville et ses alentours, la terrasse du dernier étage quant à elle joue à la fois avec la vue et le rapport au ciel. La position de coin et la topographie naturelle ont impliqué la typologie du bâtiment.

Kévin Poireau : Il tire de la microplace toute sa force et par ce jeu de volume, renverse la façade principale sur cette place, tournant le dos au boulevard. Qu’est-ce qui vous a poussé à ce retournement ?
Olivier Dubucq : La topographie du terrain mais surtout sa position dans la ville nous ont immédiatement amené à établir cette typologie : habiller un grand mitoyen en attente tout en faisant face à la place Liedts et finalement à une partie extrêmement large du paysage au nord de Bruxelles, d’est en ouest, et même au-delà …

- Maître d’œuvre : Atelier Matador sprl
- Maître d’ouvrage : Renovas asbl (Commune de Schaerbeek)
- Localisation : Schaerbeek, Belgique
- BET Stabilité : JZH & Partners scrl
- BET Techniques Spéciales : Détang Engineering sprl
- SPS : GBAr
- Entreprise : Viki sa
- Date de livraison : décembre 2012
- Surface : 1 362 m²
- Budget : 1 450 000 €
- Photographes : Van de Velde, Brygo, Noviello



































