Vous avez certainement entendu parler du Musée du Louvre-Lens conçu par les architectes nippons Kazuyo Sejima et Ryue Nishizawa alias Sanaa. À son tour, Kiiwan vous le présente en détail, de l’architecture à la muséographie en passant par le paysage et cela appuyé par une galerie généreuse de photos, plans et coupes située en bas de cette page.

Le projet d’une antenne du musée du Louvre est né le 23 mai 2003. Six villes nordiques furent candidates pour l’implantation du musée : Amiens, Arras, Béthune, Boulogne-sur-Mer, Calais, Lens et Valenciennes. Ce n’est que le 29 novembre 2004 que le premier ministre Jean-Pierre Raffarin désigna la ville de Lens.

Pas moins de 124 cabinets d’architecture déposèrent un dossier et six furent sélectionnés. Parmi eux, trois architectes français, Rudy Ricciotti, Lacaton & Vassal et l’architecte local Jerôme de Alzua. Face à nos français, trois ténors de l’architecture, Zaha Hadid, Steven Holl et les lauréats Sanaa. À cette époque, on pouvait lire dans la presse que le projet coûterait moins de 120 millions d’euros et serait livré fin 2009. Aujourd’hui le projet a coûté 30 millions de plus et a été inauguré le 4 décembre 2012.

Un musée transparent, discret, qui n’ose prendre part dans cet ancien espace minier dont il ne reste plus que les terrils en arrière-plan et les traces des anciennes voies de chemins de fer. S’efface-t-il de trop ? Le temps nous le dira.

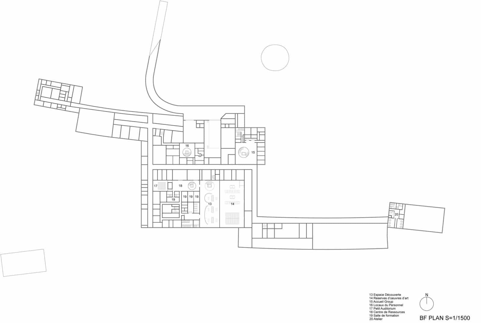
Posé sur la zone minière 9.9, le bâtiment se veut être une nouvelle aile du Louvre. Une idée qui se retrouve dans la forme du musée. Au centre se place un carré, le hall d’accueil. Deux rectangles viennent se coller à se dernier au niveau des coins, la galerie du temps à l’est et la salle d’exposition temporaire à l’ouest. Deux nouveaux rectangles viennent embrasser les extrémités de ces derniers, l’un constitue l’auditorium (la scène) et l’autre le pavillon de verre.

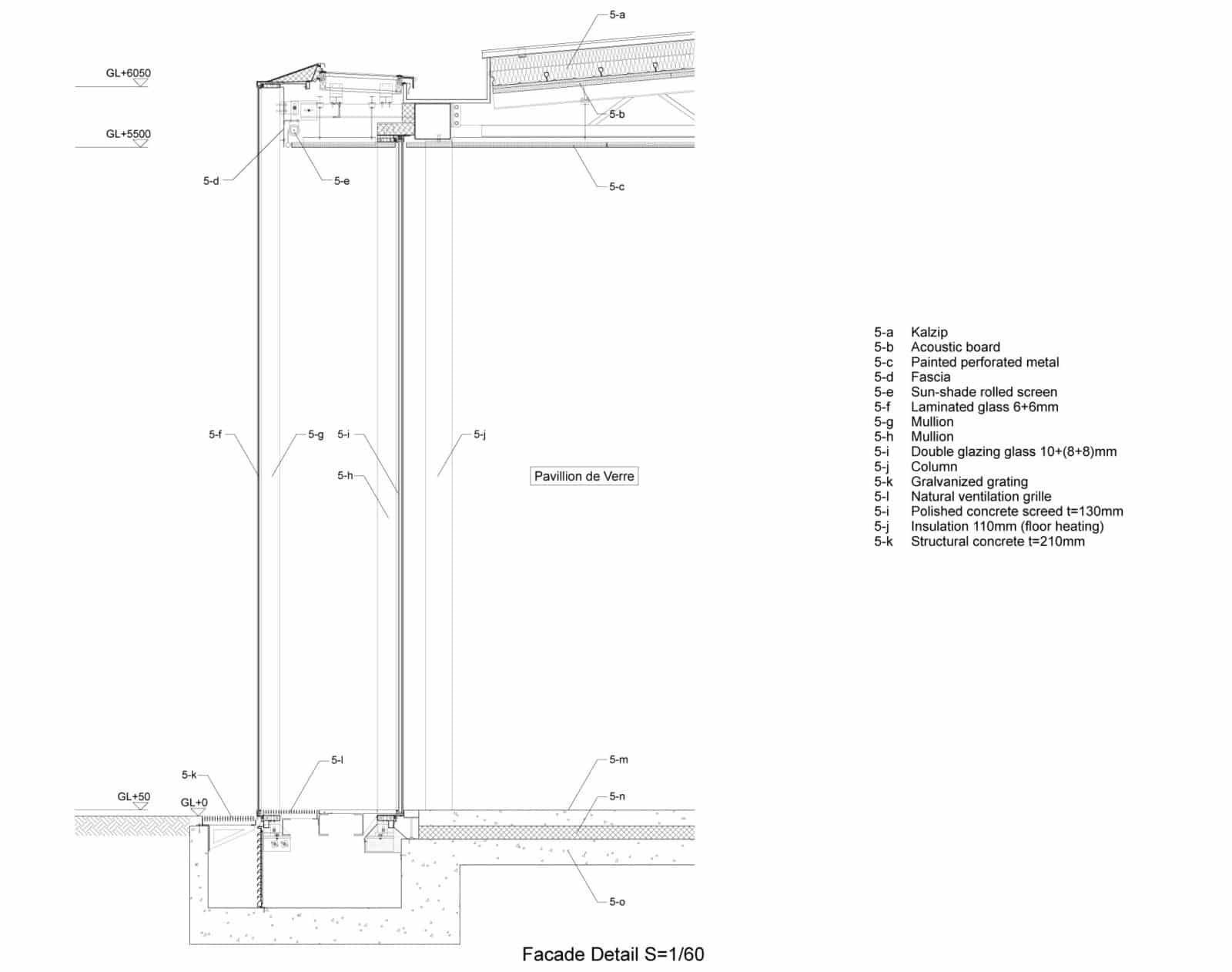
Le pavé de verre (68,5 x 58,5 x 5,5 mètres) a été conçu par les architectes dans la volonté d’offrir un espace public à la ville. En effet, le parc ainsi que la salle d’exposition temporaire sont libres d’accès. Les parois en aluminium anodisé poli sont légèrement incurvées pour suivre les courbes du terrain et ainsi donner de la douceur à ces longs pans. Des bulles de verre de trois mètres de haut dansent au sein de ce grand volume ; elles créent des espaces d’intimité pour les visiteurs. L’emplacement de l’entrée est précisément à l’endroit de l’ancien puits, le chemin y menant est également le sentier qu’empruntaient les mineurs pour s’y rendre. Si c’est par ce bâtiment que commence la visite, la porte d’entrée n’en n’est pas moins imposée. On peut entrer à travers trois portes qui correspondent aux trois entrées du parc (Lens, de Loos-en-Gohelle et de Liévin).

Contrairement aux apparences, le musée se compose de deux niveaux, un niveau sous-terrain est présent sur une grande partie de l’édifice. Le sous-sol est entièrement remblayé et est destiné à la logistique et aux services, il est assis sur une trame de pieux. Il est rendu possible aux visiteurs de voir les restaurations depuis des fenêtres en sous-sol dont l’accès se fait par le carré central. Huit ascenseurs desservent ainsi les deux niveaux.

Le bâtiment se déploie ainsi sur une longueur de 360 mètres pour totaliser 28 000 m² de plancher. À ce bâtiment vient s’entourer de manière indépendante l’administration et le restaurant.

Ce terrain de forme oblongue s’étale sur plusieurs kilomètres, sa surface est de 20 hectares. Son sol n’est ni plus ni moins qu’un terril horizontal atteignant jusqu’à quatre mètres de haut par rapport aux lotissements voisins. Ce terrain, laissé depuis longtemps en friche a fait naître une portion végétale. Celle-ci se dessine au contact des anciennes voies de chemins de fer, endroit propice à la végétalisation naturelle.

La paysagiste Catherine Mosbash a cherché à valoriser cette végétation. « La masse critique de cette vigueur végétale spontanée et celle des cités jardins mitoyennes est un atout majeur pour cet ensemble urbain. Il s’agit alors d’articuler la dynamique végétale à l’origine de l’attractivité du terrain, la dynamique culturelle du musée lui-même aux plateformes évènementielles, aux liaisons douces des cavaliers reliquat du socle minier. En d’autres termes, le parc réactive la mémoire vive du cycle des matériaux de la plante à la houille valorisée en ressource économique, puis en symétrie inverse, de la houille à la plante valorisée en ressource patrimoniale ».

Plusieurs chemins peuvent-être empruntés selon la vitesse de pas du visiteur. Une semée d’acacia accompagne le visiteur dans son allée au musée.
Le parc compte plus de 6 000 arbres, 26 000 arbustes et 7 000 vivaces. À proximité du bâtiment, le sol se densifie, la masse végétale laisse place à de la pelouse rasée dégageant ainsi les vues sur le musée et laissant sa lecture visible.
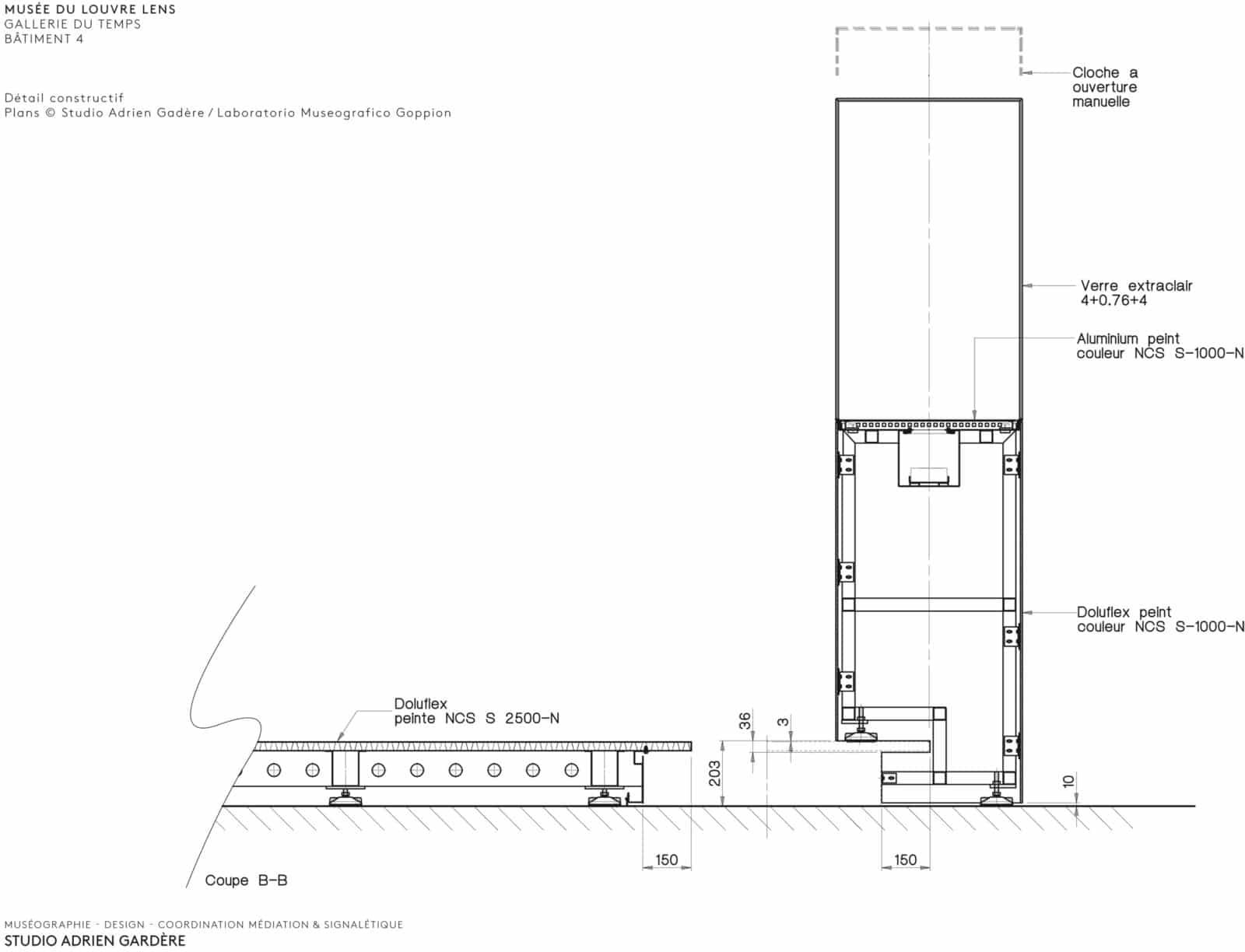
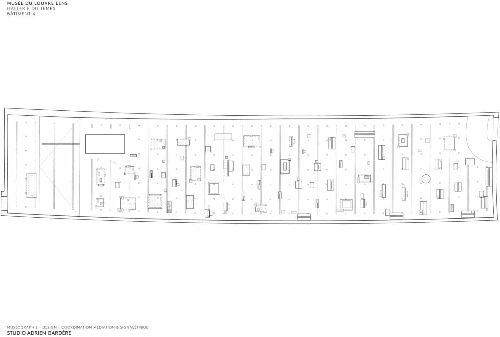
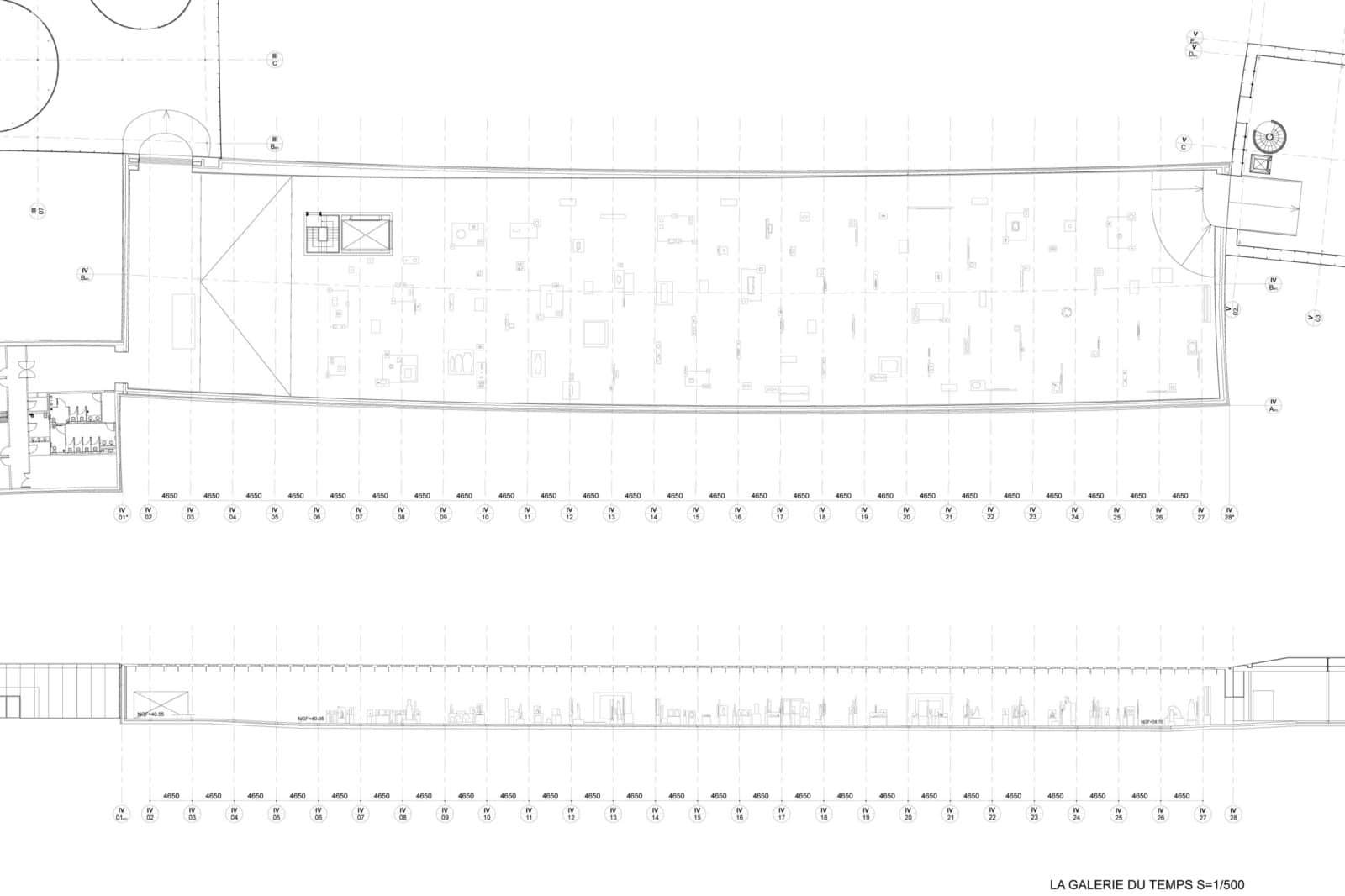
La muséographie du projet ne s’est dessinée qu’en 2009, lorsque les architectes de Sanaa ont fait appel au studio Adrien Gardère. On retiendra certainement de ce musée la galerie du Temps. Cet espace est totalement dépourvu de cloison où dans un musée traditionnel on délimite soigneusement des œuvres d’un même mouvement artistique. La galerie impressionne par sa taille, 120 mètres de long pour 25 de large.
Cette absence de cloisonnement offre à chacun la liberté de sa visite. Si la disposition du mobilier ouvre des voies, le visiteur peut suivre son chemin.
La galerie offre une multitude de possibilités au scénographe. Il est possible de faire dialoguer différentes œuvres ensemble, de créer des vues qui soient l’approfondissement de l’autre etc.
Autre particularité du musée, ce sont les vues des coulisses. Une fois descendu au sous-sol, il est possible d’apercevoir les réserves à travers des parois vitrées. Ce lieu généralement fermé au public et inaccessible est décrit comme la partie cachée de l’iceberg.

- Maître d’œuvre : Sanaa (Kazuyo Sejima et Ryue Nishizawa)
- Équipe : Kazuyo Sejima, Ryue Nishizawa, Yumiko Yamada, Yoshitaka Tanase, Louis-Antoine Grégo, Rikiya Yamamoto, Kohji Yoshida, Lucy Styles, Erika Hidaka, Nobuhiro Kitazawa, Bob Van den Brande, Arrate Arizaga Villalba, Guillaume Choplain, Osamu Kato, Naoto Noguchi, Shohei Yoshida, Takashige Yamashita, Takashi Suo, Ichio Matsuzawa, Andreas Krawczyk, Angela Pang, Jonas Elding, Sam Chermayeff, Jeanne-Francois Fischer, Sophie Shiraishi
- Maître d’ouvrage : Région Nord Pas de Calais
- Maître d’ouvrage délégué : Adevia
- Assistant à la maîtrise d’ouvrage : Cassiopee
- Paysagiste : Mosbach Paysagistes
- Muséographie : Studio Adrien Gardère / Imrey Culbert
- Architecte d’opération : Extra Muros
- BET Économiste : Bureau Michel Forgue
- BET CVC : Betom Ingénierie
- BET Electricité : Betom Ingénierie
- BET Plomberie : Betom Ingénierie
- BET Structure béton : Betom Ingénierie
- BET Structure métallique : Bollinger + Grohmann
- BET Façade : Bollinger + Grohmann
- BET Éclairage : Arup Lighting
- BET HQE : Penicaud Architecture Environnement
- BET Acoustique : Avel Acoustique
- BET SSI : Groupe Casso
- Paysagiste d’opération : Atelier LD
- Signalétique : Norm
- Multimédia : On-Situ
- Conception de la structure : SAPS / Sasaki and Partners
- OPC : EGIS Bâtiment Management / ASTEC-Conseil
- Photographes : Julien Lanoo, Iwan Baan, Hisao Suzuki
- Date d’études : août 2005 – avril 2009
- Début des travaux : décembre 2009
- Date de livraison : décembre 2012
Crédit pour les images : 1 – © Julien Lanoo / 2 – © Sanaa / 3 – © Iwan Baan / 4 – © Julien Lanoo / 5 – © Julien Lanoo / 6 – © Hisao Suzuki / 7 – © Hisao Suzuki / 8 – © mosbach / 9 – © Julien Lanoo / 10 – © Hisao Suzuki / 11 – © mosbach / 12 – © Julien Lanoo / 13 – © Julien Lanoo / 14 – © Iwan Baan / 15 – © Studio Adrien Gadère / image : On-Situ / 16 – © Iwan Baan








































































