Polyclinique Courlancy de Reims-Bezannes par Jean-Michel Jacquet

polyclinique-courlancy-reims-bezannes-jacquet-photo-19.jpg
© Michel Denancé

Le projet Courlancy est né d’un collectif de 250 médecins et chirurgiens provenant de trois cliniques différentes (Courlancy, Saint-André et Les Bleuets) qui souhaitait se rassembler afin d’offrir des services de qualités. À l’origine, trois sites sont étudiés et c’est finalement la commune de Bezannes qui séduit de par son infrastructure de transport et qui de plus propose une station de tramway face à la clinique.

polyclinique-courlancy-reims-bezannes-jacquet-photo-17
© Michel Denancé

Implantation et organisation

La polyclinique s’implante au Sud de la gare TGV de Champagne-Ardenne, au sud de la ville de Reims. Cette nouvelle zone a été créée en parallèle de l’arrivée de la gare ferroviaire, elle accueille principalement des logements autour de la clinique puis est complétée par des programmes tertiaires à proximité de la gare. Le projet quant à lui profite d’une parcelle de 7,5 hectares.  Il s’implante au centre du terrain conformément au règlement d’urbanisme, qui incite fortement à entourer la clinique des 1 000 places de parking programmées.

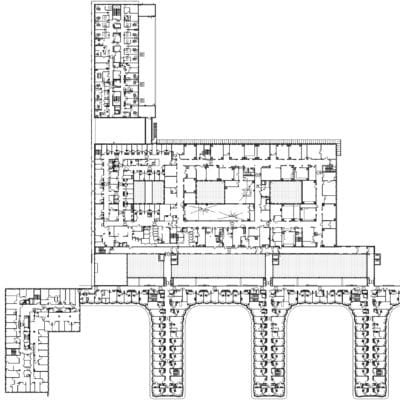
polyclinique-courlancy-reims-bezannes-jacquet-pan-rdc-legende
© Jean-Michel Jacquet

Le projet s’organise suivant deux axes perpendiculaires. L’axe Nord-Sud se matérialise par une succession de patios, bordée par une large circulation qui dessert les ailes abritant les chambres. L’axe Est-Ouest vient organiser les différents pôles de consultation (médecine nucléaire, imagerie) ainsi que les laboratoires d’analyses qui viennent délimiter le parvis d’entrée. Le hall d’accueil vient quant à lui à la rencontre de ses deux axes. Cette organisation permet à chaque pôle de fonctionner de manière indépendante grâce à des accès individualisés. Pour des raisons économiques, les locaux techniques ont fait l’objet d’un bâtiment annexe espacé du projet par une cour de services et intégré au site grâce à un talus paysager.

polyclinique-courlancy-reims-bezannes-jacquet-photo-6
© Michel Denancé

L’axe paysager

Une fois dans le hall, une succession de patios se déroule devant nous, ces derniers permettent de dissocier les flux publics des flux de services tout en permettant à chacun de profiter de la lumière naturelle à travers des bandeaux vitrés. Cet axe paysager est séquencé par les circulations qui s’implantent aux axes des ailes d’hébergement. Il a été réalisé par le paysagiste Serge Renaudie.

polyclinique-courlancy-reims-bezannes-jacquet-photo-5
55 bolivar

L’accueil des patients

Les équipements de santé, de par leurs contraintes réglementaires entre-autres, conduisent souvent les architectes à créer des patios dont la profondeur ne dépasse guère la hauteur des étages, tandis que les locaux de services sont souvent condamnés à de la lumière artificielle. Aidé par une grande parcelle qui permettra des agrandissement possibles, l’architecte Jean-Michel Jacquet offre aux patients un bain de lumière, mais aussi des vues. Les fenêtres des chambres sont cadrées à travers un léger biais de manière à voir le paysage environnement.

polyclinique-courlancy-reims-bezannes-jacquet-photo-10
© Michel Denancé

Du point de vue extérieur, les différents niveaux sont soulignés par un prolongement des dalles qui accentue l’effet de facette des chambres mais aussi apporte une protection solaire à ces dernières, elles sont par ailleurs presque toutes individuelles. Le principe de débords de dalles est réitéré pour les façades du parvis, ces avancées permettent d’accueillir des protections solaires ponctuelles animant ainsi les façades. La différence de traitement des locaux de consultations et d’hébergement, que ce soit du point de vue de la forme (angle arrondie pour les logements) que de l’aspect a pour objectif de faciliter la lecture du projet et par suite les déplacements des visiteurs. De plus, l’homogénéité des matériaux a pour objectif d’exprimer « l’identité clinique de ces bâtiments articulés sous une toise uniforme. Ces produits verriers sont un gage de performance environnementale (label HQE excellent), de facilité d’entretien et de pérennité » commente l’agence.

polyclinique-courlancy-reims-bezannes-jacquet-photo-11
© Michel Denancé

On regrette cependant que la générosité de lumière naturelle présente en rez-de-chaussée ne soit pas reconduite aux étages distribuant les chambres ainsi que le positionnement des cages d’ascenseur qui casse la volumétrie des patios. On notera cependant l’utilisation de bois pour les revêtements muraux qui adoucie le séjour et renvoie une image plus humaine que l’on peut avoir d’une clinique.

polyclinique-courlancy-reims-bezannes-jacquet-photo-18
© Michel Denancé
  • Architecte : Jean-Michel Jacquet
  • Maître d’ouvrage : Icade Santé
  • AMOA : Icade Promotion
  • Exploitant : Groupe Courlancy
  • BET : Artélia, Sanaé
  • Paysagiste : Serge Renaudie
  • Programmiste : Stéphane Bentot
  • Entreprise générale : Eiffage / Cari Fayat
  • 2014 : Début des études
  • Juillet 2014 : Permis de construire
  • Aout 2015 : Permis modificatif
  • Décembre 2015 : Début du chantier
  • Mars 2018 : Livraison
  • Juin 2018 : Mise en service
  • Surface de terrain : 75 000 m2
  • Surface : 40 000 m2
  • Budget : 74 000 000 €

Galerie du projet

Intervenants du projet

Partager cet article sur les réseaux sociaux