
Lancé en mai 2009, le projet a pour programme d’offrir un quatrième département voué à l’enseignement de l’informatique à l’IUT Paris 8 de Montreuil. Livré en septembre dernier, il est issu des Ateliers 2/3/4/ associé avec le bureau d’études Mizrahi.

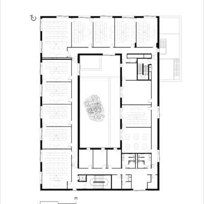
L’extension se situe au nord de l’IUT, sur une parcelle vierge délimitée par des maisons mitoyennes, face à l’actuel. L’édifice de 4 400 m² se développe sur quatre niveaux en épousant ses limites réglementaires.

Posé sur un socle blanc, le bâtiment se veut compact suivant un plan rectangulaire, éclairci par une cour intérieure. Sa peau extérieure joue de l’appareillage de la brique afin de constituer trois variantes apparentes définissant les volumes intérieurs. L’esthétique se transpose à l’intérieur du patio ainsi qu’au rez-de-chaussée à travers la perforation des feuilles d’inox.

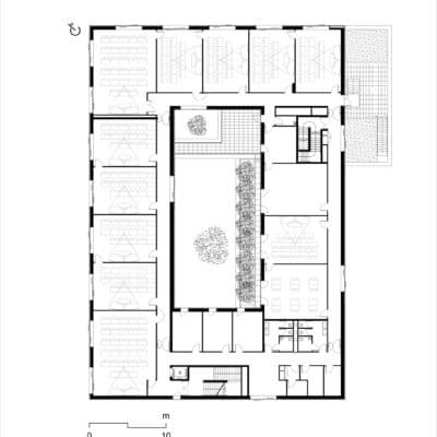
Le rez-de-chaussée est principalement dédié au réfectoire du CROUS, un logement de fonction vient clore les cuisines. Le côté donnant vers la rue est évidé afin créer un parvis d’accueil aux étudiants. Il permet également d’aérer le patio central. Les salles de classes partitionnent les deux premiers étages. Elles sont distribuées par un couloir périphérique localisé au sud. Le dernier niveau est dédié à l’administration du département.

L’intérieur contraste avec les tonalités sombres de sa peau extérieure. Les surfaces intérieures sont traitées en blanc. Le mobilier d’assises vient éveiller les yeux avec des touches colorées. Les salles sont dépourvues de tableaux à proprement dit au bénéfice d’un mur Idea Paint permettant la vidéo projection et l’écriture qui l’accompagne.

- Maître d’œuvre : Ateliers 2/3/4/
- Maître d’ouvrage : Université de Paris 8 ; Icade
- Localisation : Montreuil, 93, France
- Équipe : Olivier Arene, Jean-François Patte, Emilie Sopena, Elie Marçais, Hélène Arligui, Olivia Medot, Nicolas Guillaume, Fabrizio Glorioso, Guilio Tarquini
- Paysagiste : Faubourg 2/3/4/
- Ingénieur conseil : Mizrahi
- Acousticien : LASA
- OPC : CICAD Consultants
- Date de concours : mai 2009
- Date de livraison : septembre 2012
- SHON : 4 400 m² (construite) 600 m² (rénovée)
- Budget : 9 870 000 € HT
- Photographes : Nicolas Fussler ; Juan Sepulveda



























