
Le projet « Arc en ciel » dessiné par l’agence Bernard Bühler s’implante à l’entrée du quartier du Grand Parc, à l’angle des rue Portmann, Huyard et de l’avenue Emile Counord à Bordeaux. Ce bâtiment réveille les utilisateurs du tramway bordelais par ses couleurs vives, le programme comprend une quarantaine de logements ainsi que des bureaux.

L’agence réitère son principe de définition des niveaux du bâtiment (voir article du 16 avril). A la base de la structure se loge une trentaine de places de parking, réparti sur deux niveaux, camouflés par des grilles en métal, elles assurent une protection pour les résidents contre le vol puis servira d’ossature à la végétation grimpante future.

Le premier étage héberge des bureaux, entièrement vitré, il marque le passage entre les différents flux de circulation et les logements. Les cinq derniers niveaux sont destinés aux logements. La structure en béton est cachée par les lames en vitrage Stadip de plusieurs couleurs, seules les planelles des éléments horizontaux de la structure sont vues. L’effet est de créer un tampon entre les logements et le quartier.

Le rythme des façades est brisé par des « bow-windows vitrées », elles ressortent sur trois façades, ce sont les terrasses qui se caches derrières, elles permettent d’offrir une vue intégrale aux locataires et à la fois de ne pas être vu par le voisin. Sur la quatrième façade, les boites colorées s’alignent dans la façade.

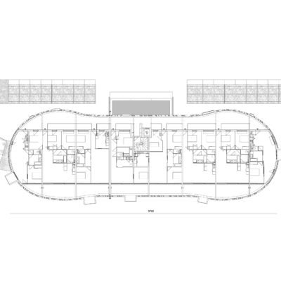
Les coursives de largeur généreuses sont des lieux de rencontres entre les habitants, espacées des logements créant ainsi un vide. L’idée étant de concevoir des logements traversants, ceci est guère intéressant quand les coursives épousent les ouvertures.

Notons que les séjours sont systématiquement tournés vers les loggias, ceci permet aux logements de bénéficier de toute la lumière naturelle nécessaire. Les lames de verre sont espacées en fonction du besoin, l’espace d’air entre ces lames fait de ce bâtiment, une structure lumineuse et aérée, le cabinet d’architecture a voulu refléter une idée de cinématique qui accompagne le tramway dans son travail.

- Maître d’œuvre : Bernard Bühler
- Maître d’ouvrage : Incite
- Localisation : Bordeaux, France
- Date de livraison : janvier 2010
- Surface : 3 658 m² en logements + 772 m² de bureaux
- Budget : 4 300 000€ HT
- Photographe : Vincent Monthiers

















