
Le lycée Albert Einstein à Bagnols sur Cèze, en France, a fait l’objet d’une restructuration et d’une extension. Ce bâtiment des années 60 de forme linéaire avec des ateliers en structure métallique bénéficie d’un renouveau grâce au cabinet N+B Architectes dirigé par Elodie Nourrigat et Jacques Brion.

Sur ce projet, l’agence a recherché des réponses à plusieurs lacunes existantes. Tout d’abord donner une échelle à ce lieu. Le projet s’inspire du campus, le rendant plus flexible. Les différents pole éducatif sont clairement identifié, le lycéen trouvera plus facilement son chemin par une lecture et une reconnaissance plus aisé.

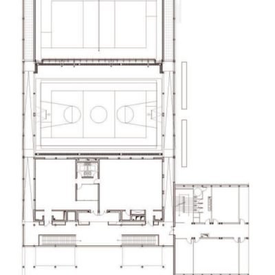
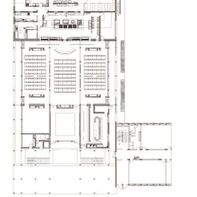
La cour est l’élément majeur du projet, lieu de rencontre, mais aussi de transition. Sa localisation offre une connexion directe avec la cafétéria, le restaurant, l’administration, l’atelier et l’enseignement général et la vie scolaire. C’est le lieu de rassemblement des étudiants pendant leur temps libre. Le traitement de l’extérieur est volontairement urbain, il permet une différentiation avec les jardins.

La réalisation d’un ensemble d’hauteur faible permet une meilleure répartition et une meilleure occupation de l’espace, cela permet aussi de s’adapter au programme. Les espaces sont traités de manières a donné une idée des séquences et de la gratitude des pôles. Les jardins entre les bâtiments reflètent l’amélioration du confort visuel et thermique du lycée. Le champ visuel s’agrandit au fur et à mesure préservant ainsi les espaces verts au nord-ouest de l’école.

Pour concevoir une nouvelle école, il faut raisonner dans l’avenir et penser dans le temps. Il ne suffit pas de produire un bâtiment d’exploitation au cours de sa prestation. Il est nécessaire de lui donner la force de traverser le temps et d’être un outil efficace. Notre intervention prend en compte le projet éducatif, la souplesse architecturale, la protection de l’environnement et le caractère public du bâtiment. Il est nécessaire de prendre conscience de la place de l’intervention et de mettre au premier plan ses qualités fondamentales.

Le projet architectural lui-même devient un objet d’enseignement car il montre un acte conscient d’une réalité, mais surtout des enjeux dans l’échelle de l’environnement, dans un souci de laisser aux générations futures un environnement sain. Le développement durable passe par la qualité des matériaux, de sa technique de conception mais aussi sur la logique de la disposition du lieu. L’intervention que nous proposons permet de restaurer la cohérence et de mettre en vedette l’ensemble au moyen d’une nouvelle scénographie spatiale.

- Architecte: N+B Architectes + F.Privat Architecture
- Maître d’ouvrage : Région Languedoc Roussillon
- Programme : restructuration et extension du Lycée d’enseignement général/technique et professionnel. Lycée Albert Einstein-Site Brassens
- Localisation : Bagnols –sur-Cèze, 45, France
- Surface : 20 000 m²
- Année d’étude : 2004
- Année de livraison : 2010
- Budget : 17 000 000 €
- Photographe : Paul Kozlowski

















