
La nouvelle Médiathèque d’Armentières dessinée par le cabinet Béal-Blanckaert, offre un outil performant pour la lecture et les nouveaux médias. De plus le projet favorise le réaménagement du quartier de la gare. Pour le cabinet d’architecture, les trois termes majeurs s’associent : la culture, l’urbanité et l’architecture.

Grâce à l’emploi de matériaux unificateurs tel que l’inox recuit brillant pour la toiture et le bois pour l’aménagement intérieur, dans une présence formelle, l’écriture architecturale se pose dans des termes de narration et d’expressionnisme propice à l’interprétation formelle en opposition à toute rigueur trop théorique.

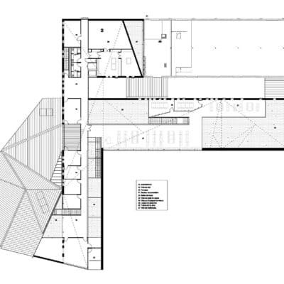
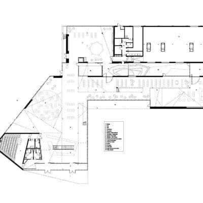
Le bâtiment se plie et se déplie pour répondre au volume exigé du programme et pour assurer une bonne transition avec les structures extérieures. Les feuilles d’inox composant les façades reflètent le paysage, celle-ci sont percées par des baies, notamment sur les côtés jardins, elles assurent un dialogue entre le lecteur et le milieu extérieur.

Plusieurs patios se définissent, ils sont en relation avec le nouveau bâtiment et les îlots existants, on remarquera une oeuvre de Samuel Buckman dans le patio situé au nord. Un vaste espace est dédié aux enfants, rendant ainsi ce projet en service public.

- Maître d’œuvre : Béal-Blanckaert
- Équipe : H. Verniers ; E. Veauvy ; T. Foucray ; S. Delcambre ; S. Delhay
- Localisation : Armentières, 59, France
- Date de concours : 2004
- Date de livraison : 2008
- Surface : 2 868 m²
- Budget : 4 950 000 €
- Photographe : Julien Lanoo, Jean Pierre Duplan, Pierre Emmanuel Rouxel

















