
Localisée dans la commune de Méricourt au nord-est de Lens, la médiathèque s’implante dans une ancienne mine dont certains éléments ont été conservés. Ce site de cinq hectares est l’objet d’une reconversion en éco-quartier. C’est donc un emplacement symbolique que la ville a choisi pour installer sa médiathèque, il marque l’évolution de cette ville de 12 000 habitants.

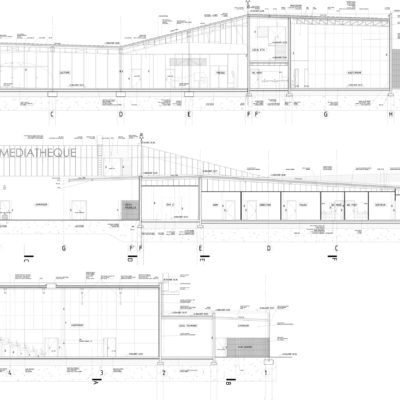
Nous sommes dans le nord, l’aspect brutal du bâtiment est bien présent, elle ‘est pas sans rappelle aux médiathèques nordique déjà publiées sur le site. En revanche, le matériau prédominant n’est pas le béton ou l’inox, mais le bois. Soutenu par une structure métallique, les lamelles de bois verticales viennent couvrir le complexe isolant et donner un aspect chaleureux et accueillant au projet.

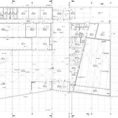
La couverture déborde sur le terrain pour créer un parvis. Inscrit dans les lignes du bâtiment, le parvis pourra accueillir des ateliers comme des jardins participatifs. Ce système permet d’obturer la chaleur du soleil en été. La discontinuité des lamelles laissent pénétrer la lumière sur cet espace. Cette disposition est réitérée à l’intérieur du bâtiment. Les voiles de verre à la perpendiculaire de la voirie permettent de répondre au besoin d’éclairage important pour ce type d’ouvrage.

Un auditorium de 147 places complète la médiathèque. La partie administrative est séparé une cours intérieure. Cette bande paysagère offre une deuxième façade vitrée à la médiathèque. La volonté des architectes est de créer un espace ouvert sur l’éco-quartier et à l’extérieur.

Inscrit dans un programme d’éco-quartier, l’édifice ne l’est pas moins, celui-ci combine la récupération d’eau de pluie, une VMC à double flux et l’eau chaude sanitaire solaire. Le bâtiment s’équipe du chauffage par le sol utilisant la géothermie. Les voiles revêtues de lamelle de bois permettent de créer des tampons thermiques.

- Maître d’oeuvre : Jérôme de Alzua Architecture
- Architecte Associé : Atelier 9.81 (Geoffrey Galand et Cédric Michel)
- Maître d’ouvrage : Ville de Méricourt
- Localisation : Méricourt, 59, France
- BET : B&R Ingénierie
- BET HQE : Solener
- BET Acoustique : Flandres Ananlyses
- Bureau de contrôle : Socotec
- Économiste : ATMO
- SPS : Société DPB
- Surface projet : 1 593 m²
- Budget : 2 500 000 € HT
- Dépôt du permis de construire : 26 juin 2008
- Début des travaux : décembre 2009
- Fin des travaux : juin 2011
- Date de livraison : octobre 2011
- Photographies : Atelier 9.81









