
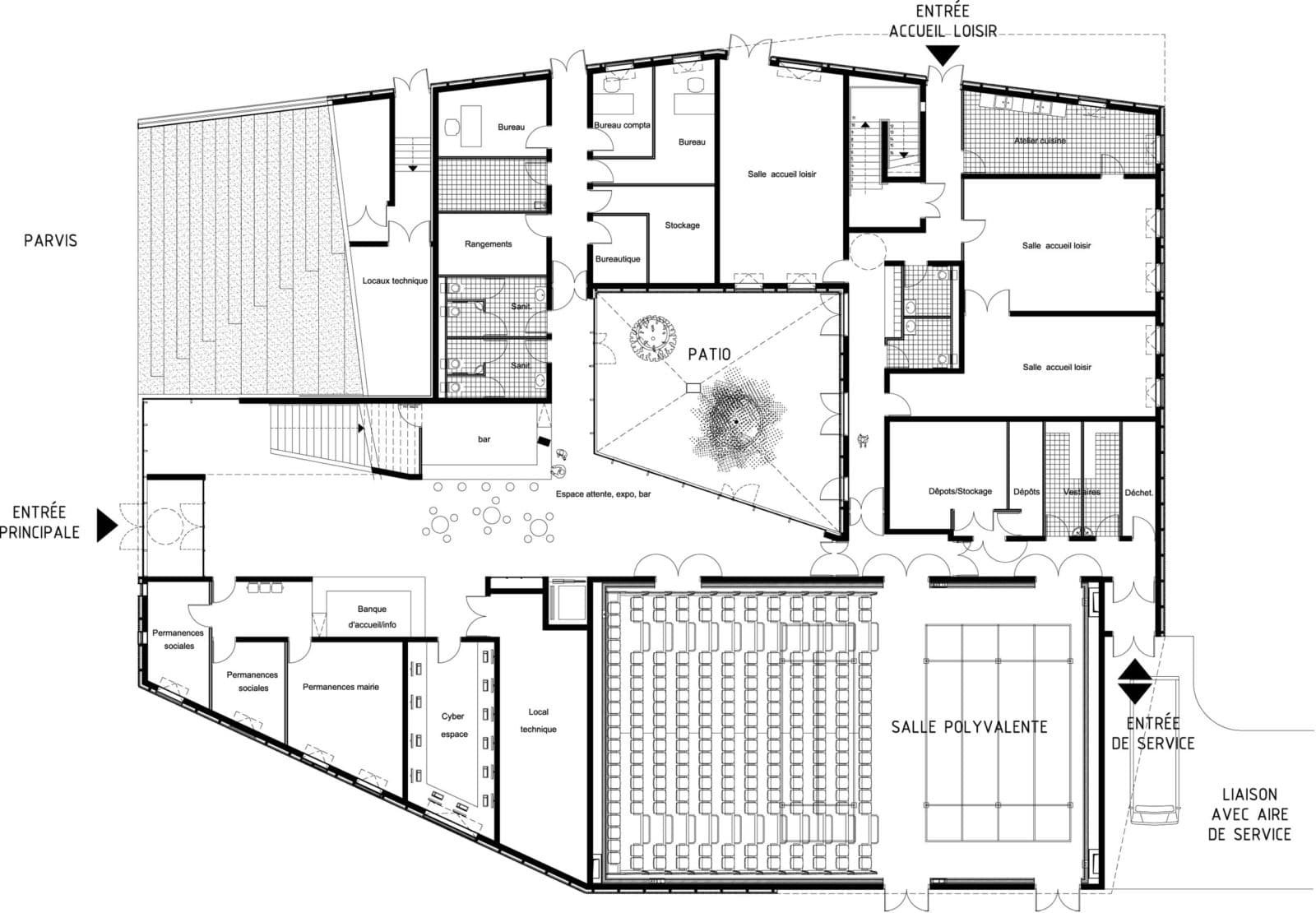
Localisé à Nevers dans la Nièvre en Bourgogne, l’espace culturel est l’œuvre d’une jeune agence parisienne, O-S Architectes, composée de Vincent Baur, Guillaume Colboc et de Gaël Le Nouëne. Achevé en septembre dernier, le bâtiment de 1 613 m² s’implante au cœur du quartier Grande Pâture.

La partie ouest de la parcelle est restituée en parvis. Le trio d’architectes a cherché à étirer l’espace public au sein du programme. Cette continuité se traduit par une invitation inscrite par un escalier de béton. L’élément s’improvise en tant que gradin d’un amphithéâtre ouvert.

Le bâtiment s’organise autour d’un patio accessible depuis l’espace d’entrée dont la géométrie se devine grâce à la transparence du voile boisé. Sa forme trapézoïdale conduit le visiteur vers l’auditorium de 220 places. La salle polyvalente traitée de manière sombre fait écho de sa peau extérieure avec un rappel des lamelles en partie basse.

Les locaux du centre de loisirs avec leurs salles de réunions complètent le premier niveau. Une salle de danse se pose à l’étage au-dessus des locaux de l’administration. En continuité des salles de travail, une terrasse privative se loge auprès du patio.

La structure de béton est enveloppée de lamelles verticales de bois de mélèze donnant un aspect convivial à l’équipement. Si la façade principale voit ses ouvertures se décomposer en un nuage de fenêtres, les autres percements s’offrent une dimension plus importante en restant ponctuel. Le projet est fermé par une toiture végétalisée.

- Maître d’œuvre : O-S Architectes
- Maître d’ouvrage : Nièvre aménagement
- Localisation : Nevers, 58, France
- BET Fluides : Bethac
- BET Structure : EVP
- BET Acoustique : Eckea
- Économiste : Mdetc
- Scénographe : Ducks Sceno
- Date de livraison : septembre 2012
- SHON : 1 613 m²
- Budget : 2 561 887 €
- Photographe : Cécile Septet














