
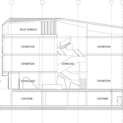
Le Musée d’art Sogn & Fjordane se situe à Førde en Norvège. Livré récemment par le cabinet danois C.F. Møller Architects, le musée compte 3 000 m² composé de quatre niveaux d’expositions.

La ville de Førde est une petite ville de 12 000 habitants située au cœur d’un fjord (vallée glacière). La ville a la particularité de se situé à quelques pas du Jostedalsbreen, le plus grand glacier d’Europe. Le paysage alentour est très marqué par le relief mais aussi arboré.

L’originalité du site a conduit les architectes à concevoir le musée comme un bloc cristallin détaché du glacier et ayant glissé jusqu’à la ville. La façade est marquée par des failles créées par le contact avec la roche. La nuit, ces lignes franches s’illuminent et le démarque des bâtiments avoisinant.

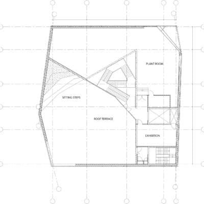
La visite s’effectue de manière ascendante, les quatre niveaux d’expositions sont desservis par un escalier central au plan triangulaire. La toiture est accessible au public, elle offre une vue sur la montagne.

- Maître d’oeuvre : C.F. Møller Architects
- Maître d’ouvrage : Sogn & Fjordane, Futurum AS
- Localisation : Førde, Norvège
- Paysagiste : Schønherr Landskab
- BET : Hjellnes Consult, Sweco AS, Nord Vest Miljø AS
- Construction : Åsen & Øvrelid
- Date de concours : 2006
- Date de livraison : 2012
- Surface : 3 000 m²
- Photographes : Oddleiv Apneseth, Stein Sandemose Bårdsen



















