
Le cabinet angevin de Frédéric Rolland a livré cet été le plus grand temple bouddhiste d’Europe. Situé à Bussy Saint-Georges dans la Seine-et-Marne, ce projet s’inscrit dans la volonté de la ville de proposer un lieu de culte à chacun de ses habitants.
Le double enjeu de cet édifice, commandité par l’ordre monastique Fo Guang Shan basé à Taïwan, est d’offrir un lieu de culte à ses membres et d’ouvrir cette pratique religieuse au public. Cet ordre dispose aujourd’hui de plus de deux cents lieux de cultes et d’un million de membres, il est l’un des plus importants dans la religion bouddhiste. En France, il est présent à six endroits, son siège se situe à Vitry-sur-Seine.

Le projet s’implante dans la ZAC de Sycomore, un éco-quartier qui accueillera à termes près de 10 000 habitants. Longeant la ligne de RER, le site de 12 hectares abrite la ferme classée du Génitoy. À l’origine de ce projet, l’ordre monastique Fo Guang Shan qui souhaitait s’étendre, le site de Vitry-sur-Seine étant trop étroit pour le projet. La ville de Bussy Saint-Georges qui possède une communauté importante d’origine asiatique a donc proposé un terrain, intégré à son projet d’éco-quartier et à la construction de nouveaux lieux de cultes (mosquée, synagogue…). Dans un premier temps, la maitrise d’ouvrage s’est tournée vers l’architecte taiwanais Kris Yao qui a déjà plusieurs temples à son actif. Ce dernier noue des relations amicales avec l’architecte américaine d’origine asiatique Polly Lo Rolland, épouse et associée de Frédéric Rolland. Leur cabinet basé à Angers et présent à Shanghai qui compte près de 110 personnes mène depuis plus de vingt ans des projets de grandes envergures en Asie. Kris Yao a donc proposé ce projet à l’atelier en indiquant quelques lignes propre à l’écriture des temples.

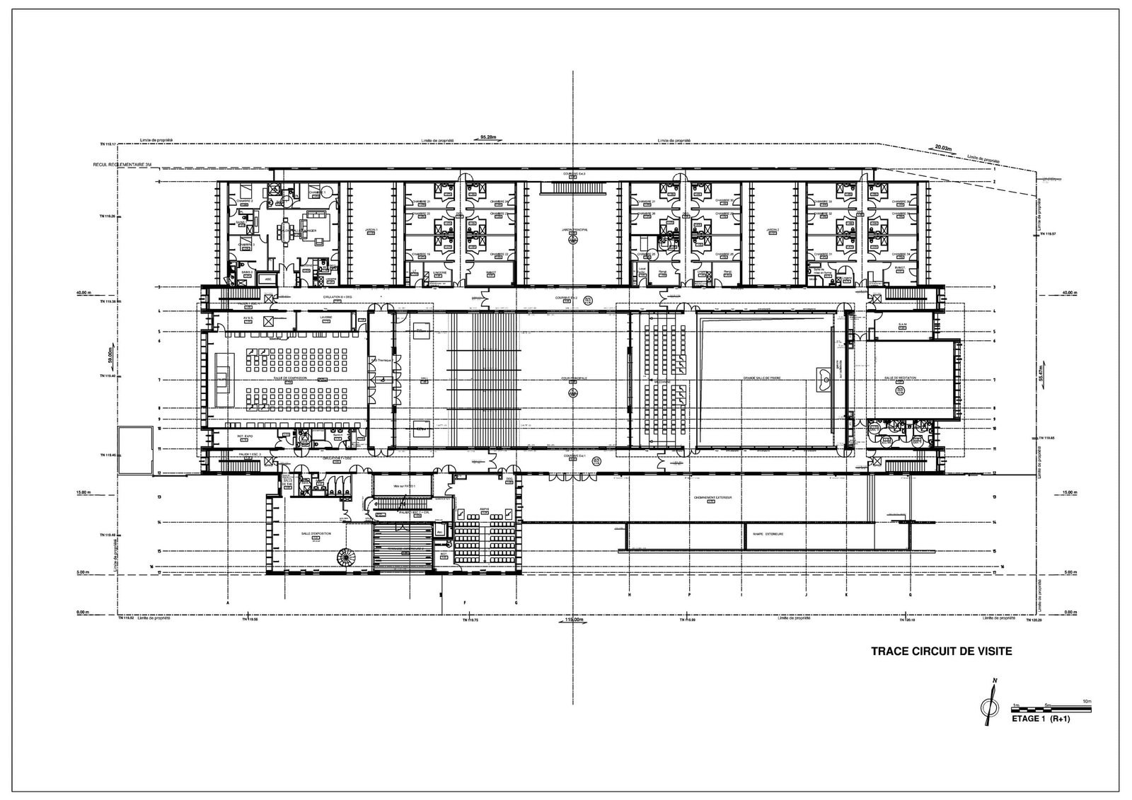
Le bâtiment se positionne à l’écart des constructions environnantes pour recueillir un maximum de tranquillité. Parallèle à la route, une large rampe permet de mettre en scène une déambulation initiatique lors de cérémonies. Il est volontairement arboré autour de son enveloppe et son parc pour créer un poumon vert.
Le bâtiment s’organise selon trois zones parallèles les unes des autres : culturelle, cultuelle et résidentielle. Elles sont délimitées par quatre voiles de béton suivant l’axe Est-Ouest. Imposant et sculpté, les voiles ont pour objectif de contenir le programme, dont la hiérarchisation est lisible dès l’extérieur. Une fois les fonctions et directions contenues, la délimitation des espaces au sein des zones se fait de manière plus légère que ce soit par les façades, les cloisons ou la toiture afin d’inviter l’esprit à s’élever.

La première abrite les salles de classes, la salle d’exposition, les salons de thé et le restaurant. Cette zone assure un espace tampon entre la zone de culte et l’extérieur. Développé sur deux niveaux, l’espace cultuel se positionne au cœur du projet. Un hall central permet de distribuer la salle de commémoration, la salle de médiation, la salle de compassion et la salle de prière de 450 m². La dernière zone concerne les 36 chambres pour les hôtes et les vénérables.

La grande salle de prière dépourvue de poteaux abrite un bouddha de huit tonnes en Jade blanc et doré d’or de 4.50 mètres de hauteur. Importé de Birmanie, sa pose à complexifié l’organisation du chantier puisqu’il a fallu garder une réservation en toiture pendant le chantier. La statue se pose sur un socle en bois, devant ce voile de béton blanc où 166 médaillons de bouddha assis sont sculptés. Éclairé naturellement par un bandeau périphérique épousant le plafond, la salle s’imprègne de citations sacrées du grand maître Hsing Yun. « Ce concept général de cet espace magistral, est de recréer une transcendance spirituelle à travers l’écriture et la figure du Bouddha » commente l’architecte.

La salle de compassion, dont les voiles latéraux sont ornés de 32 petits bouddha en granit de Chine intégrés dans des loges à différentes altimétries, se situe au dernier niveau. Cet espace sacré est voué au bouddha de compassion. La salle de médiation est en revanche dépourvue de toute décoration afin de ne pas troubler la quiétude intérieure dont elle a pour vocation. Elle est traitée en blanc et assise sur un parquet.

- Maître d’œuvre : Atelier Rolland & Associés
- Maîtrise d’ouvrage : SCI Aushiang
- Localisation : Bussy Saint-George, 77, France
- BET Structure : CERT
- BET Fluides : AREA
- BET Acoustique : DB Acoustique
- BET Cuisine : BEGC
- Économiste : Atelier Rolland & Associés
- Bureau de contrôle : Véritas
- Coordinateur SSI : Quassi
- SPS : Véritas
- Entreprise générale : Quille Construction
- Début des travaux : septembre 2010
- Date de livraison :
- Surface de terrain : 6 500 m²
- SHON : 5 200 m²
- Budget : 15 000 000 € HT
- Photographe : Willy Barré










